De Pelikaan 60, Almelo
Welkom aan de Pelikaan 60!
Deze geschakelde twee-onder-één-kapwoning ligt in een fijne, groene woonomgeving en biedt verrassend veel ruimte, een praktische indeling en een heerlijke tuin met overkapping. De woning is keurig onderhouden, beschikt over een garage én carport en heeft maar liefst drie ruime slaapkamers én een extra kamer op zolder. Kortom: een ideale gezinswoning!
Indeling
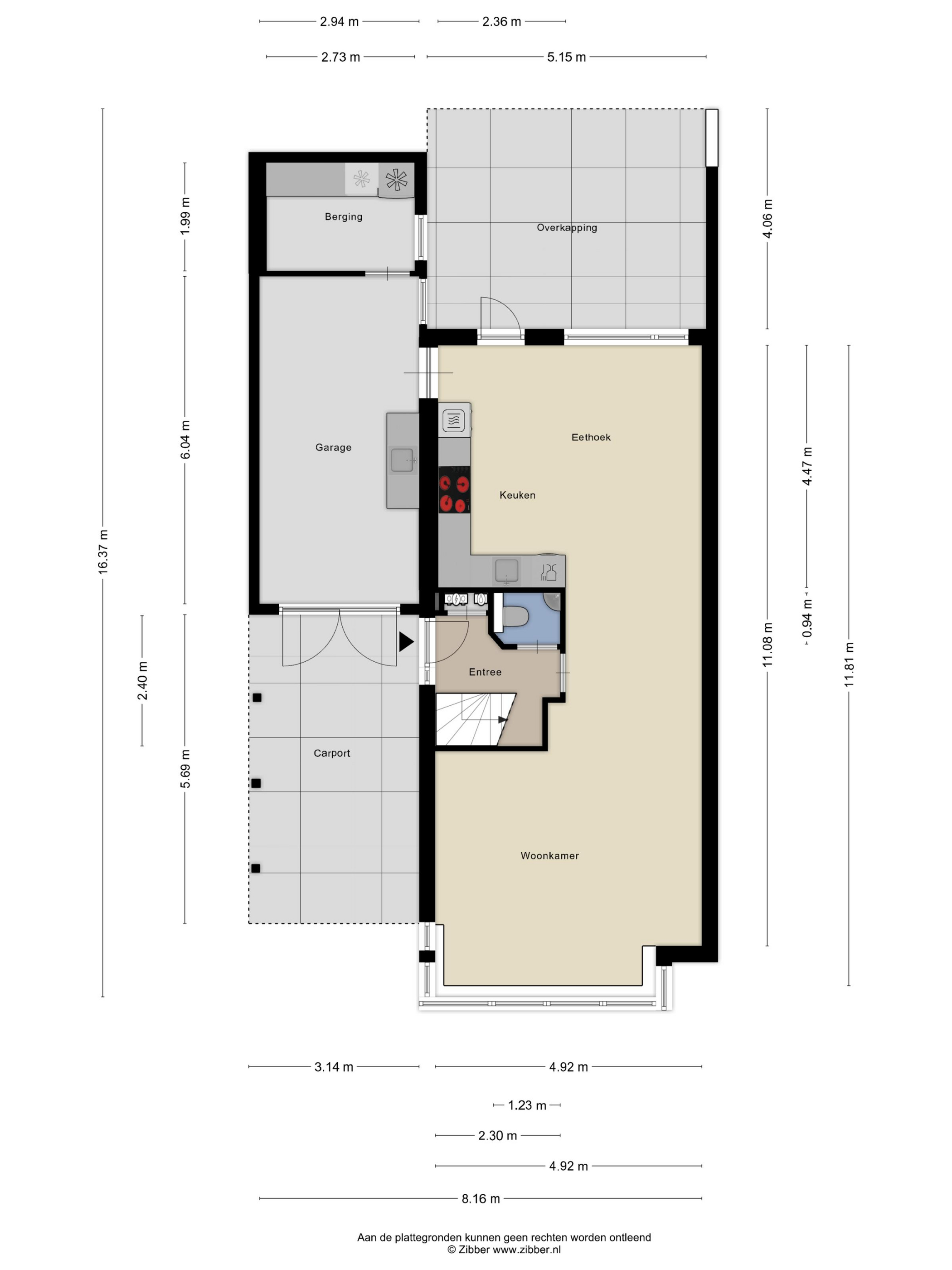
Begane grond: Via de overdekte entree kom je binnen in de hal met toilet, trapopgang en toegang tot de woonkamer. De woonkamer is heerlijk licht dankzij de grote raampartijen aan de voorzijde en biedt voldoende ruimte voor een gezellige zithoek. De open keuken bevindt zich aan de achterzijde en beschikt over een praktische hoekopstelling, voorzien van apparatuur en volop werkruimte. Direct naast de keuken vind je de eethoek, met zicht op de achtertuin én een deur naar de overkapping. Vanuit hier zijn eveneens de ruime garage en berging bereikbaar. De woning beschikt daarnaast over een carport aan de voorzijde, zodat je altijd droog kunt parkeren.
Eerste verdieping: Op de eerste verdieping bevinden zich drie comfortabele slaapkamers, allen van goed formaat. De badkamer is compleet ingericht met een douche, wastafel en toilet. De master bedroom aan de achterzijde beschikt over een vaste kast en vanuit de voorste 2 slaapkamers is het balkon bereikbaar.
Tweede verdieping: De vaste trap brengt je naar de tweede verdieping, waar een royale vierde slaapkamer is gerealiseerd. Deze ruimte is voorzien van veel bergruimte onder de knieschotten, natuurlijke lichtinval en biedt volop mogelijkheden voor werk-, hobby- of logeerkamer.
Tuin: De achtertuin is verzorgd aangelegd en biedt zowel zon als schaduw. De overkapping maakt het mogelijk om al vroeg in het voorjaar én tot laat in het najaar buiten te zitten. Achter in de tuin is extra groen aangebracht voor privacy en sfeer.
EXTRA informatie:
- Ruime geschakelde 2/1-kapwoning met garage én carport.
- Drie volwaardige slaapkamers en een ruime zolderkamer.
- Lichte woonkamer en open keuken met zicht op de tuin.
- Heerlijke tuin met overkapping, ideaal voor elke seizoen.
- Gelegen in een rustige, groene en kindvriendelijke woonomgeving.
EXTRA voorwaarden:
- Het woonhuis is ingemeten volgens de NEN2580 en is voorzien van een meetrapport.
- Voor woningen ouder dan 25 jaar is de ouderdomsclausule van toepassing.
- Indien het woonhuis niet is bewoond door verkoper is de niet-bewoningsclausule van toepassing.
- In de koopovereenkomst zal een 10% waarborgsom of bankgarantie worden opgenomen.
- Er is pas sprake van een koopovereenkomst als beide partijen de koopovereenkomst hebben ondertekend. Dit betreft het zogenaamde schriftelijkheidsvereiste.
- Aanvaarding: in overleg.
