Beukstraat 1, Enschede
Te koop! In de rustige Beukstraat in Enschede vind je dit karaktervolle halfvrijstaande hoekhuis uit 1937. Een woning met een warme uitstraling, vol met klassieke elementen. Bijvoorbeeld de erker aan de voorzijde met originele glas-in-loodraampjes en een marmeren vloer bij de entree.
Binnen vind je verrassend veel ruimte. De woonkamer is licht en sfeervol, met genoeg plek voor een grote eettafel of een fijne zithoek. De uitbouw aan de achterzijde biedt extra praktische ruimte voor de wasmachine en droger, en via de achterdeur loop je zo de tuin in.
De keuken sluit mooi aan op de woonkamer en geeft zicht op de tuin. Boven zijn 3 slaapkamers en een nette badkamer. Op zolder vind je een grote extra ruimte die zich uitstekend leent als logeerplek, hobbykamer of thuiswerkplek. Met een kleine aanpassing kun je hier zelfs een extra slaapkamer creëren.
Kortom: een instapklare twee-onder-een-kapwoning (op de hoek) met karakter, ruimte en mogelijkheden. Ideaal voor wie op zoek is naar een (eerste) eigen plek met sfeer én toekomst.
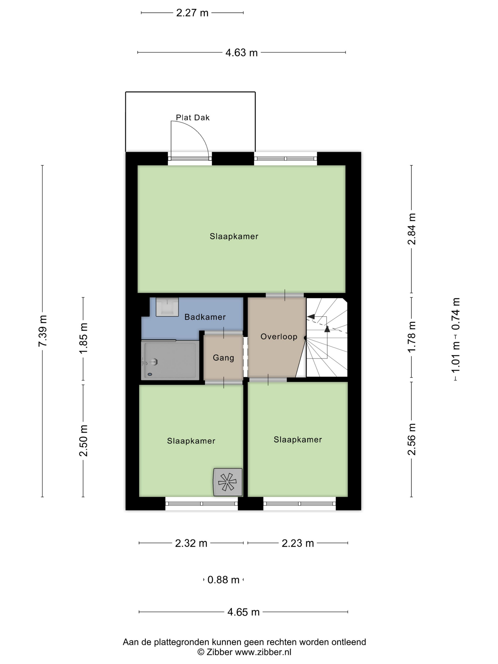
Indeling:
Begane grond: Entree, hal met trapopgang, woonkamer met erker, open keuken, bijkeuken en toilet.
1e verdieping: Via de overloop zijn drie slaapkamers en de badkamer te bereiken. De badkamer is uitgerust met een inloopdouche en een wastafel. Tevens biedt een vaste trap toegang tot de zolder, die zich uitstekend leent als extra bergruimte of als vierde slaapkamer.
2e verdieping: Via een vaste trap bereik je de open zolderruimte. Deze verdieping biedt volop mogelijkheden en kan eenvoudig worden ingericht als vierde slaapkamer, hobbykamer of werkplek.
Tuin: De achtertuin, gelegen op het zonnige zuiden, is een heerlijke plek om te ontspannen en te genieten van het buitenleven. Achterin bevindt zich een ruime en praktische berging, ideaal voor het opbergen van fietsen, tuingereedschap of andere spullen.
De Beukstraat ligt in een rustige en groene wijk met alle voorzieningen binnen handbereik. Scholen, supermarkten en het centrum van Enschede zijn gemakkelijk te bereiken, en voor een ontspannen wandeling sta je zo in het prachtige Volkspark. Dankzij de gunstige ligging zijn ook de uitvalswegen, waaronder de A35, snel en eenvoudig bereikbaar.
De woning heeft energielabel C en heeft grotendeels glasisolatie, waar de enkele beglazing voornamelijk het glas-in-lood betreft. De energiekosten zijn goed beheersbaar, mede door de vloerisolatie.
EXTRA Informatie:
- Bouwjaar 1937.
- Perceel 146m2.
- Woonoppervlakte 84m2.
- Rustig, kindvriendelijk en centraal.
- Vier slaapvertrekken.
- Beschutte en rustige tuin op het zuiden.
- Gratis openbaar parkeren in de nabije omgeving.
- Nieuwe CV ketel (2023) in eigen beheer.
- Een op jouw situatie toegespitst duurzaamheidsadvies voor deze woning is beschikbaar via onze website.
EXTRA voorwaarden:
- Het woonhuis is ingemeten volgens de NEN2580 en is voorzien van een meetrapport.
- Voor woningen ouder dan 25 jaar is de ouderdomsclausule van toepassing.
- Indien het woonhuis niet is bewoond door verkoper is de niet-bewoningsclausule van toepassing.
- In de koopovereenkomst zal een 10% waarborgsom of bankgarantie worden opgenomen.
- Aanvaarding: in overleg.
- Er is pas sprake van een koopovereenkomst als beide partijen de koopovereenkomst hebben ondertekend. Dit betreft het zogenaamde schriftelijkheidsvereiste.
