Gagelstraat 26, Enschede
Deze charmante erkerwoning combineert karakter met hedendaags wooncomfort en is gelegen op een fijne locatie. De woning valt direct op door de sfeervolle gevel met erker, die niet alleen zorgt voor een speels aanzicht maar ook voor extra lichtinval in de woonkamer.
Binnen tref je een verrassend ruime indeling en aan de achterzijde een heerlijke, zonnige tuin op het zuiden met volop privacy. Met onder andere een sfeervolle overkapping en een eigen achterom is dit een ideale woning voor wie comfortabel wil wonen én graag geniet van het buitenleven.
Indeling
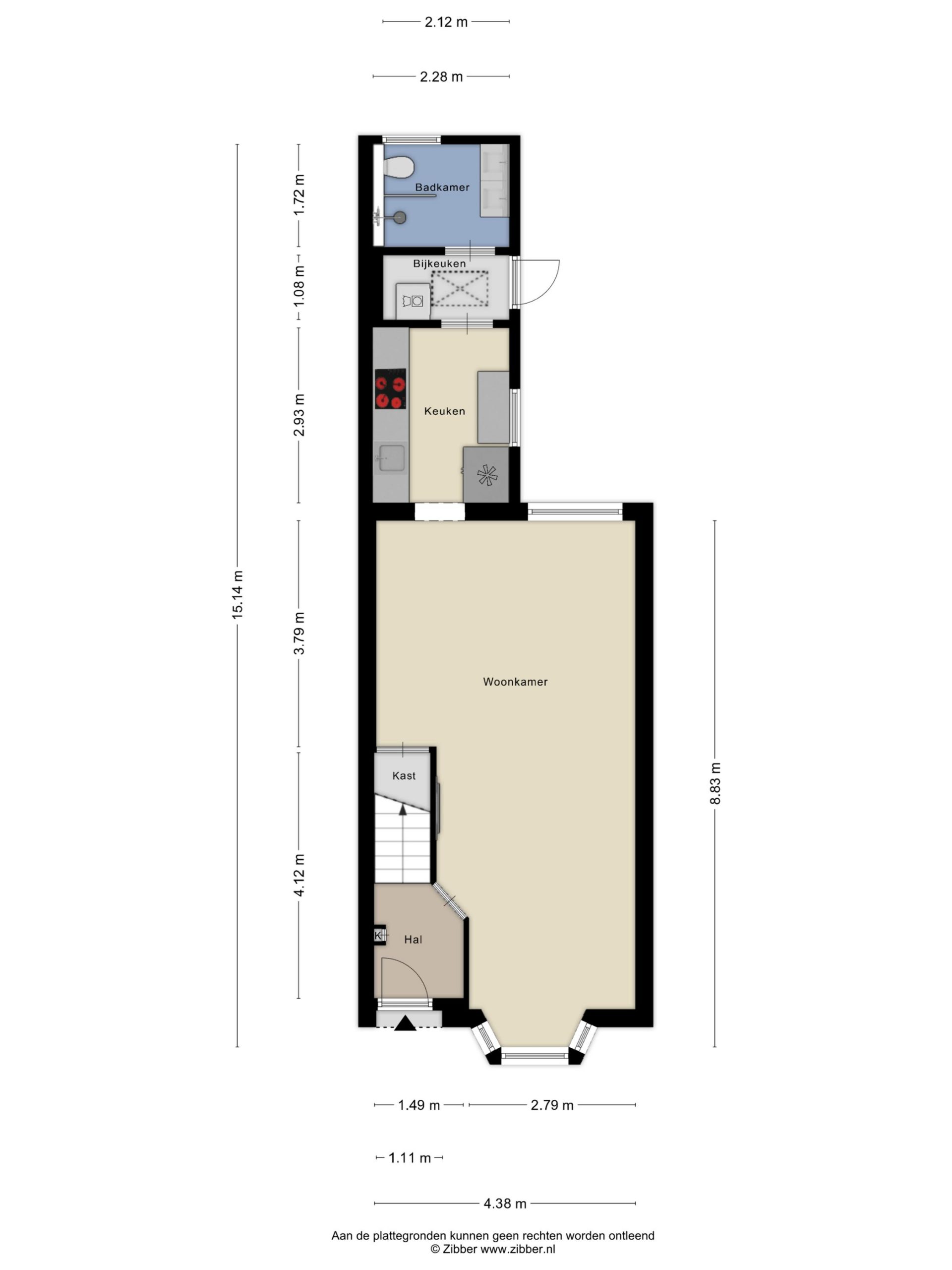
Begane grond: Via de kunststof voordeur betreed je de woning. In de hal bevinden zich de meterkast, de trapopgang naar de verdieping en de toegang tot de woonkamer.
De woonkamer is ruim opgezet en verdeeld in een sfeervol zit- en eetgedeelte. Aan de voorzijde bevindt zich de eetkamer, die dankzij de erker profiteert van een prettige lichtinval en uitzicht op de straat. Aan de achterzijde is de woonkamer gesitueerd, met voldoende ruimte voor een comfortabele zithoek.
Aansluitend vind je de keuken, voorzien van diverse inbouwapparatuur.
Achter de keuken bevindt zich de praktische bijkeuken met aansluitingen voor de wasmachine en droger. Vanuit de bijkeuken heb je tevens toegang tot de achtertuin en via een vlizotrap bereik je de bergzolder, gelegen boven de keuken, bijkeuken en badkamer. Deze ruimte is ideaal voor extra opslag en hier bevindt zich tevens de cv-opstelling.
De volledig betegelde badkamer is bereikbaar via de bijkeuken en is verzorgd afgewerkt. De badkamer is voorzien van een inloopdouche met luxe douchepaneel en handdouche, een toilet en een wastafelmeubel. Daarnaast beschikt de ruimte over een designradiator en een raam, wat zorgt voor natuurlijke ventilatie en daglicht.
1e verdieping: Vanaf de overloop heb je toegang tot drie slaapkamers. De master bedroom bevindt zich aan de achterzijde van de woning en beslaat de gehele breedte. Dit is een ruime kamer met voldoende kastruimte.
Via de vaste trap bereik je de bergzolder. Deze verdieping biedt voldoende bergruimte en is ideaal voor het opbergen van seizoensspullen, koffers of andere zaken die je uit het zicht wilt bewaren.
Tuin: De woning beschikt over een heerlijke, zonnige tuin gelegen op het zuiden. Dankzij de gunstige ligging geniet je hier volop van de zon en is het een fijne plek om te ontspannen of gezellig te borrelen.
De tuin is volledig bestraat en daarmee onderhoudsvriendelijk aangelegd. Achterin bevindt zich een sfeervolle tuinkamer, een ideale plek voor lange avonden met vrienden en familie. Aansluitend is er nog een praktische berging aanwezig voor extra opslagruimte.
Verder biedt de tuin veel privacy en is er een eigen achterom aanwezig, wat het geheel extra praktisch maakt.
EXTRA informatie:
- gagelstraat26.nl
- Energielabel C.
- De woning beschikt over 3 slaapkamers.
- Grotendeels voorzien van isolerende beglazing.
- Remeha Calenta cv-ketel uit 2019.
- Voorzien van 6 zonnepanelen.
- Badkamer is in 2021 vernieuwd.
- Keuken is deels vernieuwd in 2021.
- Gelegen in een kindvriendelijke woonwijk, nabij winkels, scholen, openbaar vervoer en sportfaciliteiten.
- Bouwjaar: 1927, woonoppervlakte: 84 m², inhoud: ca. 344 m³, perceeloppervlakte: 156 m².
EXTRA voorwaarden:
- Het woonhuis is ingemeten volgens de NEN2580 en is voorzien van een meetrapport.
- Voor woningen ouder dan 25 jaar is de ouderdomsclausule van toepassing.
- Indien het woonhuis niet is bewoond door verkoper is de niet-bewoningsclausule van toepassing.
- In de koopovereenkomst zal een 10% waarborgsom of bankgarantie worden opgenomen.
- Aanvaarding: in overleg.
- Er is pas sprake van een koopovereenkomst als beide partijen de koopovereenkomst hebben ondertekend. Dit betreft het zogenaamde schriftelijkheidsvereiste.
