Hanenberglanden 55, Enschede
Aan de rand van de wijk Stroïnkslanden gelegen tussenwoning met een overkapping in de op het zuidwesten gelegen tuin. De woning is zeer netjes onderhouden en ligt aan een plantsoen met speeltoestellen voor de kinderen. Dankzij de extra kamer op de begane grond is de woning multifunctioneel en biedt bijvoorbeeld de mogelijkheid tot kantoor aan huis.
Indeling:
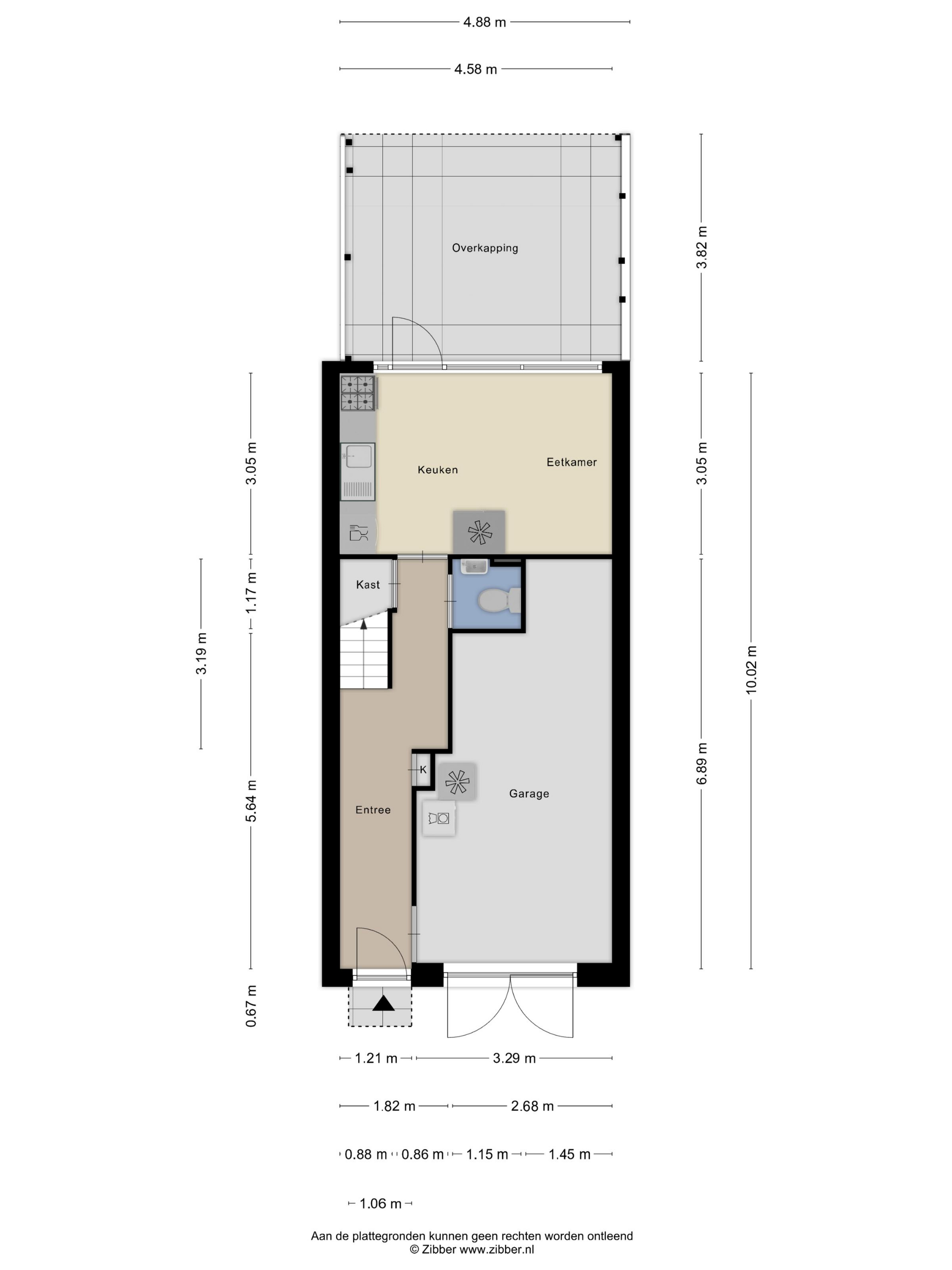
Begane grond: Entree, hal, toegang tot inpandige garage/ berging, meterkast, toilet en slaap-, hobby-, werkkamer met doorgang naar de tuin. Aansluitend aan de hobbykamer is er een overkapping waar je tot in de late avonduren kunt genieten van het buitenleven. Dit mede dankzij het keukenblok in de hobbykamer.
1e verdieping: Overloop, straatgerichte woonkamer met aansluitend de half-open woonkeuken met keurige hoekkeuken.
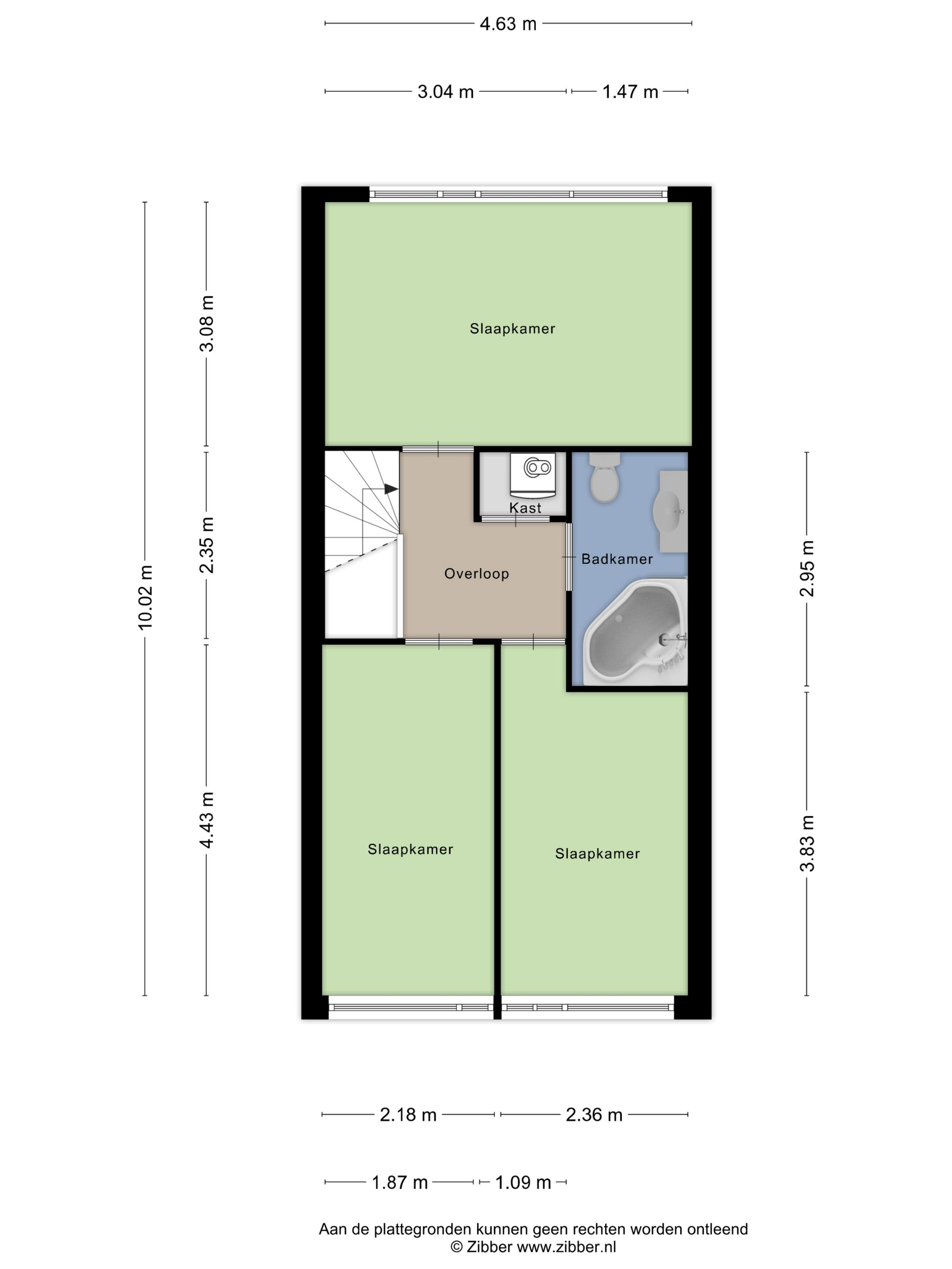
2e verdieping: Overloop, drie slaapkamers, stookruimte met mechanische ventilatie, badkamer v.v. toilet, hoekligbad met douche en wastafelmeubel.
De woning is gelegen nabij diverse openbare voorzieningen, w.o. winkelcentrum, openbaar vervoer, sport- en zorgfaciliteiten. Het zijn ruime en praktische woningen, waarbij mogelijkheid voor werken, slapen of hobby uitgevoerd kan worden op de begane grond.
EXTRA informatie:
- Heerlijk tuin met overkapping op het zuidwesten;
- Inpandige garage met parkeerplek op eigen terrein;
- Kindvriendelijk en rustig gelegen;
- Een op jouw situatie toegespitst duurzaamheidsadvies voor deze woning is beschikbaar via onze website.
EXTRA voorwaarden:
- Het woonhuis is ingemeten volgens de NEN2580 en is voorzien van een meetrapport.
- Voor woningen ouder dan 25 jaar is de ouderdomsclausule van toepassing.
- Indien het woonhuis niet is bewoond door verkoper is de niet-bewoningsclausule van toepassing.
- In de koopovereenkomst zal een 10% waarborgsom of bankgarantie worden opgenomen.
- Aanvaarding: in overleg.




