Mekkelholtsweg 166, Enschede
Het zal je maar gebeuren… je hebt net de badkamer helemaal laten vernieuwen en dan moet je vanwege het werk verhuizen…
Dat is precies wat bij deze Mekkelholtsweg 166 speelt. Maar die hele fraaie nieuwe badkamer is niet het enige waar deze woning mee scoort. De gevelbekleding werd vernieuwd. De woning heeft kunststof kozijnen met HR++ glas. De hoofdslaapkamer werd vergroot. De woonkamer beschikt over een hele mooie gevel vullende glas-pui, die het licht heel fraai laat binnenkomen. En wanneer je dan toch naar de achtertuin kijkt, springt ook de overkapping in het oog.
En ook verder is dit gewoon een hele nette woning. Dus ideaal om jou woon carrière in te starten.
Indeling:
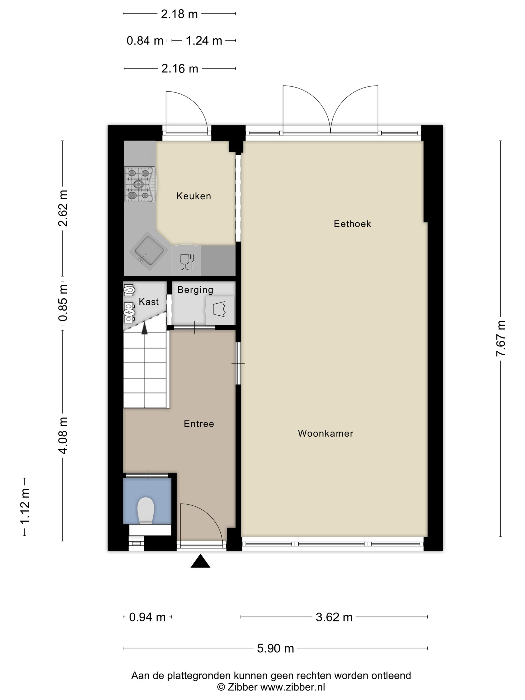
Begane grond: Entree/hal met links om de hoek het toilet en verder links de trapopgang. Voorheen kon je vanuit de gang rechtdoor naar de keuken. Die deur is dicht gemaakt en de ruimte voor die keukendeur is omgebouwd tot wasmachinekast, die nu ook de meters voor de nutsvoorzieningen herbergt. Net voor die handige kast leidt een deur naar de woonkamer. Meteen valt op hoe net deze woning is en hoe mooi het licht vanaf achteren binnenkomt. De eethoek kreeg een mooie grote plek en de zitkamer ligt aan de voorzijde met zicht op het groene plantsoen, waaraan deze woning ligt. De keuken ligt links achterin de woning, is al ouder, maar wel gewoon goed bruikbaar.
Tuinen: De achtertuin bereiken we via de achterdeur in de keuken, maar zodra het maar even mooi weer is, zorgen de tuindeuren vanuit de woonkamer natuurlijk voor de directe open verbinding. De ruime overkapping is snel bereikt en daar achter ligt de fietsenschuur. De poort verbindt de tuin met de achterliggende Spechtstraat, waar een ieder zijn of haar auto parkeert. De voortuin ligt aan het plantsoen. Er is vanaf straat een inrit, waardoor het mogelijk is om in de voortuin een parkeerplaats te realiseren, zoals verschillende buren al hebben gedaan.
Verdieping: Via de vaste trap bereiken we de overloop. Hier hangt de CV ketel en vinden we 3 slaapkamer. De hoofdslaapkamer werd vergroot door het inpandige balkon bij de slaapkamer aan te trekken. Aan de voorzijde ligt de mooie moderne en in 2025 vernieuwde badkamer. Een plaatje…
EXTRA’s de opsomming:
- Keurig onderhouden tussenwoning gelegen aan een groen grasveld of plantsoen.
- Keurig nieuw energielabel C.
- Ruime lichte en keurige woon leefkamer met ruimte voor een grote eettafel.
- Keuken is ouder, maar goed bruikbaar.
- Drie goede slaapkamers op de verdieping en een in 2025 fraai vernieuwde badkamer.
- Badkamer uitgerust met brede wastafel, inloopdouche en tweede toilet.
- Grotendeels verharde achtertuin met vrijstaande schuur en grote overkapping.
- Grotendeels voorzien van kunststof kozijnen met HR glas.
- Moderne Intergas HR Combiketel (huur).
- Op de overkapping liggen 4 zonnecollectoren.
- Parkeren gebeurt in de achterliggende Spechtstraat.
- Eventueel de mogelijkheid om een auto op eigen grond te parkeren, in de voortuin.
- Universiteit Twente op korte fietsafstand.
- In de directe omgeving van scholen, uitvalswegen en het fraaie winkelcentrum Roombeek.
- In de koopakte wordt een waarborgsom opgenomen ter grootte van 10% van de koopsom.
- Een op jouw situatie toegespitst duurzaamheidsadvies voor deze woning is beschikbaar via onze website.
- Perceeloppervlak: 102m².
- Woonoppervlak: ca. 90m².
- Overkapping: ca. 11m².
- Externe bergruimte: ca. 5m².
- Inhoud: 318m³.
- Bouwjaar: 1961.
EXTRA voorwaarden:
- Het woonhuis is ingemeten volgens de NEN2580 en is voorzien van een meetrapport.
- Voor woningen ouder dan 25 jaar is de ouderdomsclausule van toepassing.
- Indien het woonhuis niet is bewoond door verkoper is de niet-bewoningsclausule van toepassing.
- In de koopovereenkomst zal een 10% waarborgsom of bankgarantie worden opgenomen.
- Er is pas sprake van een koopovereenkomst als beide partijen de koopovereenkomst hebben ondertekend. Dit betreft het zogenaamde schriftelijkheidsvereiste.
- Aanvaarding: in overleg.
