Operastraat 173, Enschede
Op een rustige locatie, met alle dagelijkse voorzieningen binnen handbereik, staat deze tussenwoning met een lichte woonkamer en een ruime achtertuin. Een ideale woning voor starters of voor wie graag zijn eigen woonwensen wil realiseren!
De woning is gelegen in een kindvriendelijke woonomgeving, nabij diverse voorzieningen zoals basisscholen, speeltuinen, sportverenigingen, winkels en openbaar vervoer. In de straat is voldoende parkeergelegenheid aanwezig en ook het openbaar vervoer bevindt zich op loopafstand.
Indeling:
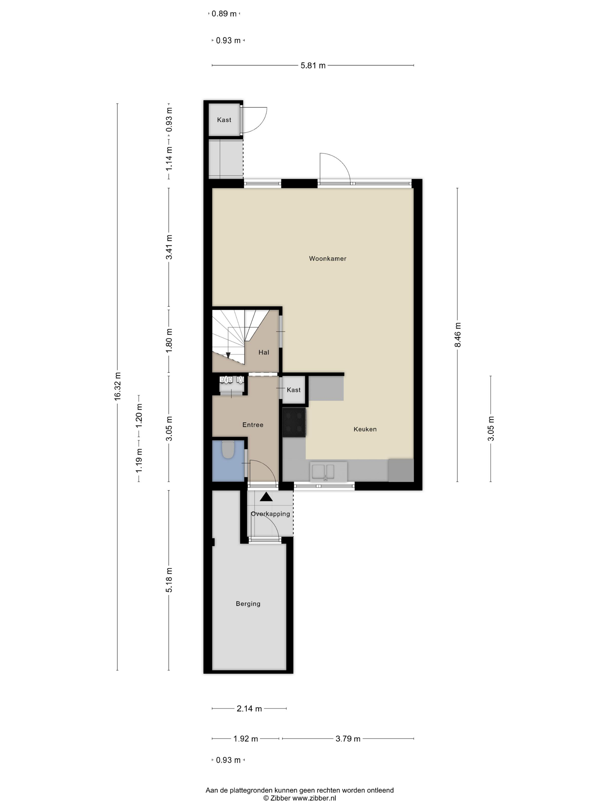
Begane grond: Via de entree kom je binnen in de hal met meterkast, trapopgang, toilet en toegang tot de woonkamer.
De woonkamer is heerlijk licht en biedt directe toegang tot de achtertuin.
Aan de voorzijde van de woning bevindt zich de keuken. Deze is praktisch ingericht en beschikt over een gasfornuis met afzuigkap en oven.
1e verdieping: Vanaf de overloop zijn drie ruime slaapkamers en de badkamer bereikbaar. Tevens bevindt zich hier de vaste trap naar de tweede verdieping. Twee slaapkamers beschikken bovendien over praktische inbouwkasten.
De badkamer is volledig betegeld en voorzien van een bad-/douchecombinatie, toilet, dubbele wastafel en radiator.
2e verdieping: Via de vaste trap bereik je de tweede verdieping. Op de overloop is de wasmachineopstelling gesitueerd. Daarnaast bevindt zich hier een aparte bergruimte met de cv-combi ketelopstelling.
De zolder biedt voldoende bergruimte en kan daarnaast uitstekend worden gebruikt als slaapkamer, werkplek of hobbyruimte. De ruimte biedt volop mogelijkheden om deze naar eigen wens verder in te richten. Benieuwd naar de mogelijkheden? Onze makelaar denkt graag met je mee en kan je vanuit EXTRA Bouwen adviseren over de verschillende opties.
Tuin: De achtertuin is gelegen op het zuidoosten en biedt volop mogelijkheden om geheel naar eigen wens te worden ingericht. Een fijne buitenruimte met veel potentie voor wie graag zijn eigen tuinideeën wil realiseren.
Daarnaast is er een handige buitenberging aanwezig, ideaal voor het opbergen van tuinkussens en gereedschap.
De voortuin is volledig bestraat en beschikt over een aangebouwde stenen berging.
EXTRA informatie:
- www.operastraat173.nl
- Energielabel C.
- De woning beschikt over vier slaapkamers.
- Diepe tuin met zonnescherm.
- De benedenverdieping is voorzien van isolerende HR+ beglazing.
- In 2023 voorzien van een nieuwe meterkast.
- Een op jouw situatie toegespitst duurzaamheidsadvies voor deze woning is beschikbaar via onze website.
- Bouwjaar: 1978, woonoppervlakte: 99 m², inhoud: ca. 455 m³, perceeloppervlakte: 151 m².
EXTRA voorwaarden:
- Het woonhuis is ingemeten volgens de NEN2580 en is voorzien van een meetrapport.
- Voor woningen ouder dan 25 jaar is de ouderdomsclausule van toepassing.
- Indien het woonhuis niet is bewoond door verkoper is de niet-bewoningsclausule van toepassing.
- In de koopovereenkomst zal een 10% waarborgsom of bankgarantie worden opgenomen.
- Aanvaarding: in overleg.
- Er is pas sprake van een koopovereenkomst als beide partijen de koopovereenkomst hebben ondertekend. Dit betreft het zogenaamde schriftelijkheidsvereiste.
