Ouverturestraat 150, Enschede
Verrassend ruime twee-onder-een-kapwoning met eigen oprit, royale garage én een fraai aangelegde tuin. De woning beschikt over vier slaapkamers, een serre en is voorzien van zonnepanelen.
De praktische indeling en de opvallend ruime garage maken deze woning uitermate geschikt voor diverse doeleinden, zoals hobby, opslag of werken aan huis. De serre vormt een prettige verlenging van de leefruimte en zorgt voor een fijne verbinding met de tuin, waar je kunt genieten van zon en privacy.
Kortom: een ruime gezinswoning met volop mogelijkheden op een fijne locatie. De woning is gunstig gelegen ten opzichte van scholen, sportfaciliteiten, winkels, natuur, openbaar vervoer en uitvalswegen richting de snelweg.
Indeling:
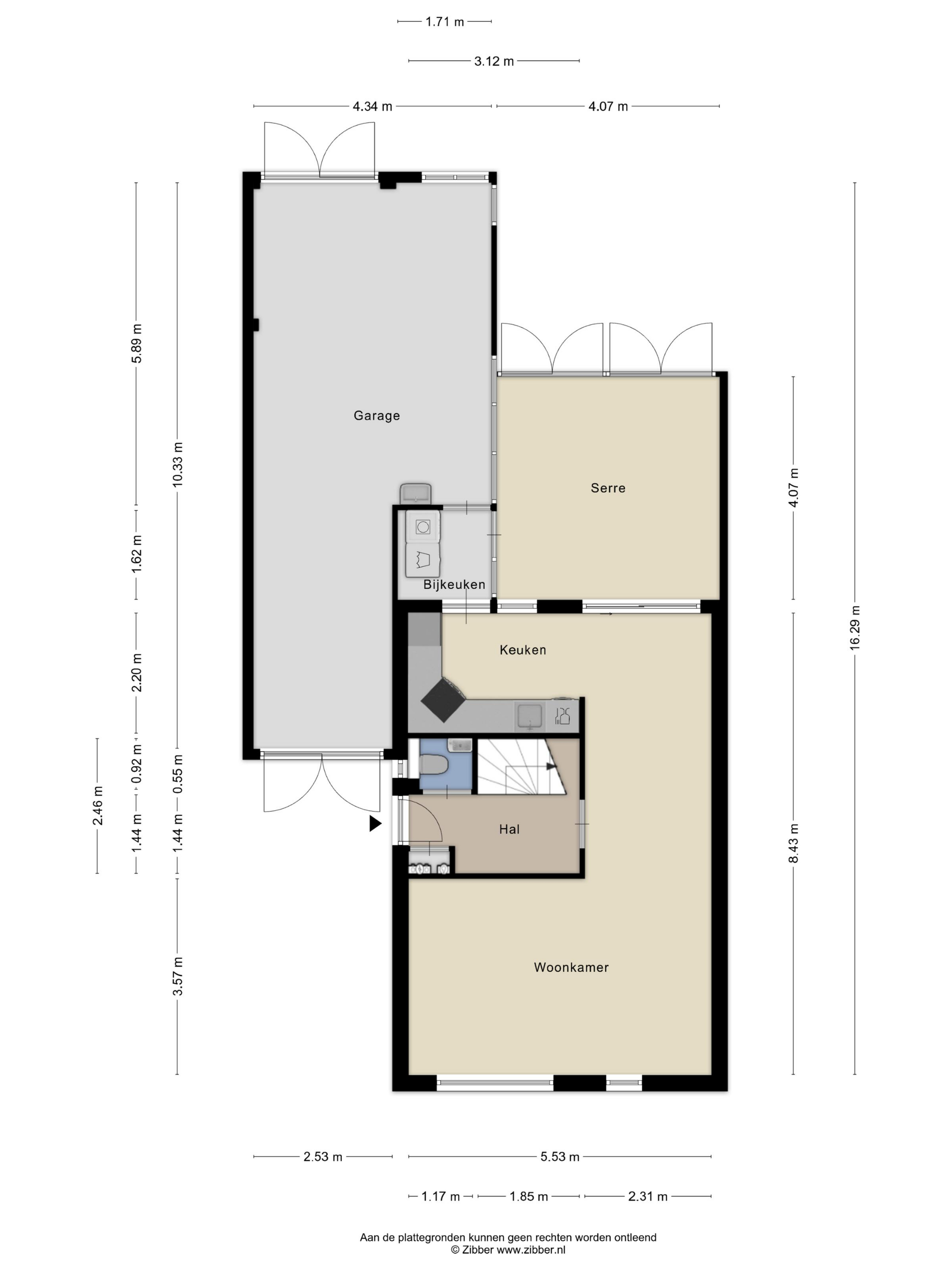
Begane grond: Middels de eigen oprit bereik je de voordeur van de woning. Bij binnenkomst kom je in de hal, waar zich de meterkast, het nette toilet en de trapopgang naar de verdiepingen bevinden. Het toilet is volledig betegeld en voorzien van een hangcloset en fontein.
Aan de voorzijde van de woning bevindt zich de lichte en ruime woonkamer, die dankzij de grote raampartijen een prettige hoeveelheid daglicht ontvangt.
Aan de achterzijde van de woning bevindt zich de keuken, uitgevoerd in een strakke en tijdloze opstelling met lichte fronten en een contrasterend werkblad. De keuken is voorzien van diverse inbouwapparatuur en biedt volop werk- en bergruimte. De aangrenzende eethoek maakt dit tot een fijne plek om samen te komen en staat in directe verbinding met de serre middels de schuifpui. Deze serre vormt een heerlijk verlengstuk van de woning, waar je het hele jaar door comfortabel geniet van het buitengevoel en de tuin.
1e verdieping: Vanaf de overloop zijn de drie slaapkamers en de badkamer bereikbaar. Tevens bevindt zich hier de vaste trap naar de tweede verdieping.
De badkamer is volledig betegeld en uitgevoerd in een lichte, tijdloze kleurstelling. De ruimte is voorzien van een ligbad, aparte douche, wastafelmeubel en een toilet. Dankzij het aanwezige raam is er natuurlijke ventilatie, wat bijdraagt aan het comfort.
2e verdieping: Via een vaste trap bereik je de tweede verdieping. Hier bevindt zich een zolderverdieping die momenteel is ingericht als slaapkamer.
Op deze verdieping is tevens de opstelling van de cv-combiketel aanwezig en er is volop bergruimte achter de knieschotten. De ruimte is multifunctioneel en kan uitstekend worden gebruikt als slaapkamer, werkplek of hobbyruimte.
De ruimte biedt volop mogelijkheden om deze naar eigen wens verder in te richten. Benieuwd naar de mogelijkheden? Onze makelaar denkt graag met je mee en kan je vanuit EXTRA Bouwen adviseren over de verschillende opties.
Tuin: De woning beschikt over een verzorgde voortuin met een groene, speelse aanleg die zorgt voor een nette en uitnodigende eerste indruk.
De achtertuin is ruim en fraai aangelegd en ligt op het noordwesten, waardoor je hier heerlijk kunt genieten van de middag- en avondzon. De tuin is voorzien van meerdere terrassen en groene borders, wat zorgt voor een fijne afwisseling tussen zon, schaduw en privacy.
Achterin de tuin bevindt zich een praktische berging. Daarnaast is de uitzonderlijk ruime garage ook direct vanuit de tuin bereikbaar, wat het gebruik extra comfortabel maakt.
De serre vormt een fraaie overgang tussen woning en tuin en fungeert als een volwaardige extra leefruimte. Dankzij de grote raampartijen is dit een heerlijke plek om het hele jaar door van de tuin te genieten.
Garage: De oorspronkelijke enkele garage is uitgebouwd en verbreed tot een zeer riante dubbele garage, ideaal voor diverse doeleinden zoals hobby, opslag of werken aan huis. De garage is voorzien van twee grote garagedeuren en extra kozijnen met ramen, wat zorgt voor prettige daglichttoetreding.
De ruimte is volledig afgewerkt met een praktische tegelvloer, waardoor deze eenvoudig schoon te houden is. Daarnaast is de garage zeer functioneel ingericht met uitgebreide opbergmogelijkheden. Ook is er een werkstelling aanwezig voor het opbergen van apparatuur.
Verder beschikt de garage over een wasgelegenheid en is het water eenvoudig af te sluiten bij vorstperiodes.
Omgeving:
- De woning is gelegen in een rustige straat met aan de overzijde uitsluitend bungalows, wat zorgt voor een vrij en open uitzicht met veel privacy.
- De straat is recent vernieuwd, waarbij de riolering en schoonwatervoorziening zijn aangepakt. Tevens is er een nieuwe asfaltlaag aangebracht en zijn aan beide zijden van het trottoir nieuwe tegels gelegd.
EXTRA informatie:
- Energielabel C.
- Bouwjaar 1983, waarbij de huidige eigenaar destijds zelf de opdracht heeft gegeven voor de bouw van de woning.
- De woning is voorzien van vier slaapkamers.
- Voorzien van 10 zonnepanelen (2023).
- Begane grond voorzien van isolerende HR++ beglazing.
- ATAG HR-combiketel (2024).
- ATAG boiler (2024).
- Zonnescherm aan de voorzijde van de woning.
- Riante garage met multifunctionele mogelijkheden; perfect voor hobbyisten, extra opslag of het realiseren van een werkplek aan huis.
- Eigen oprit.
- De woning is voorzien van professionele sloten aan zowel de voor als achterzijde.
- Een op jouw situatie toegespitst duurzaamheidsadvies voor deze woning is beschikbaar via onze website.
- Bouwjaar: 1983, woonoppervlakte: 117 m², inhoud: ca. 605 m³, perceeloppervlakte: 271 m².
EXTRA voorwaarden:
- Het woonhuis is ingemeten volgens de NEN2580 en is voorzien van een meetrapport.
- Voor woningen ouder dan 25 jaar is de ouderdomsclausule van toepassing.
- Indien het woonhuis niet is bewoond door verkoper is de niet-bewoningsclausule van toepassing.
- In de koopovereenkomst zal een 10% waarborgsom of bankgarantie worden opgenomen.
- Aanvaarding: in overleg.
- Er is pas sprake van een koopovereenkomst als beide partijen de koopovereenkomst hebben ondertekend. Dit betreft het zogenaamde schriftelijkheidsvereiste.
