Paulus Potterstraat 95, Enschede
Jouw eerste eigen thuis begint hier! Ben jij starter op de woningmarkt en droom je van een eigen plek die betaalbaar en goed gelegen is?
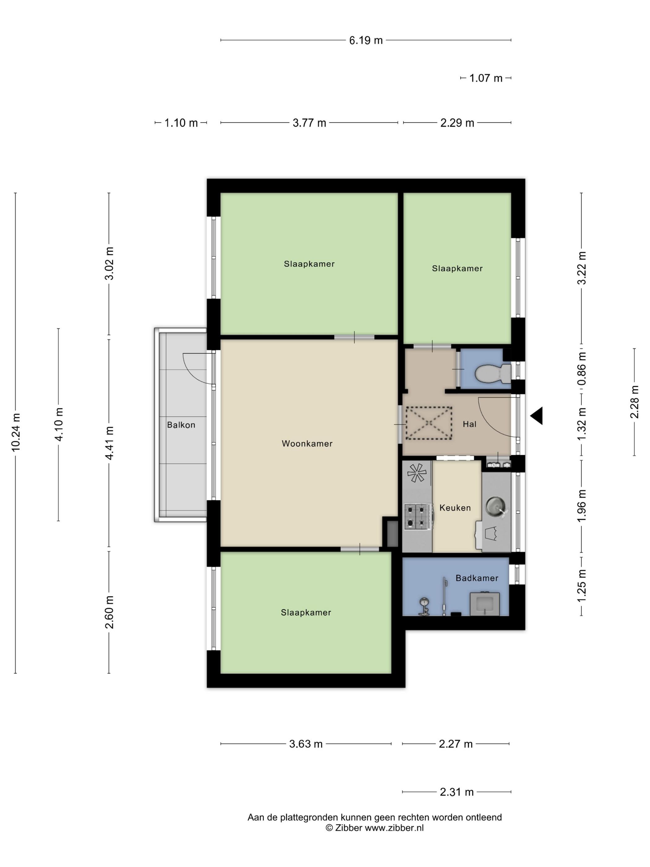
Dan is dit appartement (bovenwoning) in de geliefde wijk Stadsveld er eentje om direct enthousiast van te worden. Dit goed onderhouden appartement beschikt over drie slaapkamers, een balkon op het zuiden en een separate stenen berging.
Indeling
Bij binnenkomst tref je de entree met hal, meterkast en een toilet. Vanuit de hal zijn vrijwel alle ruimtes bereikbaar. De dichte keuken is voorzien van een nette inbouwkeuken met diverse apparatuur en biedt alles wat je nodig hebt om lekker te koken. De badkamer beschikt over een douche en wastafelmeubel. De ruime en lichte woonkamer is een fijne plek om te ontspannen en staat in directe verbinding met het balkon via een loopdeur. Het balkon ligt gunstig op het zuiden en biedt een vrij en groen uitzicht over een ruim opgezet plantsoen. Hier geniet je volop van rust en privacy. Verder beschikt het appartement over drie prima slaapkamers, waarvan één met een praktische opstelplaats voor het witgoed.
Extra bergruimte nodig? Geen probleem! Via een vlizotrap bereik je de royale bergzolder, waar zich tevens de CV-ketel bevindt. Ideaal voor het opbergen van seizoensspullen.
De ligging maakt het plaatje compleet: in de rustige en populaire woonwijk Stadsveld woon je met het winkelcentrum, scholen en speeltuinen op loopafstand. Alles binnen handbereik, perfect voor jouw eerste stap op de woningmarkt.
Kortom: een instapklaar appartement op een fijne locatie, met verrassend veel ruimte.
EXTRA informatie:
- pauluspotterstraat95.nl
- Drie slaapkamers.
- Ruime bergzolder die met een vlizotrap bereikbaar is.
- Rustige ligging met vrij uitzicht aan de achterzijde over groene omgeving.
- Zonnig balkon op het zuiden met zonwering.
- Eigen stenen berging.
- Ligging nabij het winkelcentrum van Stadsveld.
- VvE bijdrage: € 117,98 per maand.
EXTRA voorwaarden:
- Het woonhuis is ingemeten volgens de NEN2580 en is voorzien van een meetrapport.
- Voor woningen ouder dan 25 jaar is de ouderdomsclausule van toepassing.
- Indien het woonhuis niet is bewoond door verkoper is de niet-bewoningsclausule van toepassing.
- In de koopovereenkomst zal een 10% waarborgsom of bankgarantie worden opgenomen.
- Aanvaarding: in overleg.
- Er is pas sprake van een koopovereenkomst als beide partijen de koopovereenkomst hebben ondertekend. Dit betreft het zogenaamde schriftelijkheidsvereiste.
