Reutumbrink 26, Enschede
Deze drive-in woning biedt je alle elementen die nodig zijn voor een comfortabel gezinsleven. Deze woning beschikt over een inpandige garage, twee ruime woonkamers en een fijne leefkeuken met veel lichtinval. De woning is voorzien van twee ruime slaapkamers, een derde slaapkamer is te realiseren op de begane grond. Door de ruimte in de woning is er voldoende leefruimte voor het hele gezin. De tuin is gelegen op het oosten en biedt veel privacy. De tuin van deze woning is een ideale plek om te ontspannen en te genieten van het buitenleven.
Indeling woning:
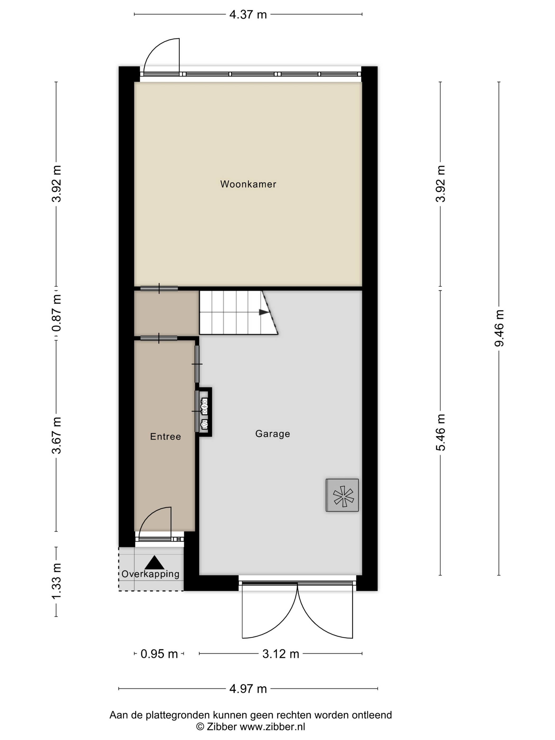
Begane grond: Doordat het hier om een drive-in woning gaat, kom je op de begane grond binnen in de hal vanuit waar je de garage en de hal kunt bereiken. Vanaf de hal kun je naar de EXTRA woonkamer. Vanuit deze kamer bereik je de ruimte achtertuin met veel privacy. Via de hal kun je met de trap richting de eerste verdieping van de woning.
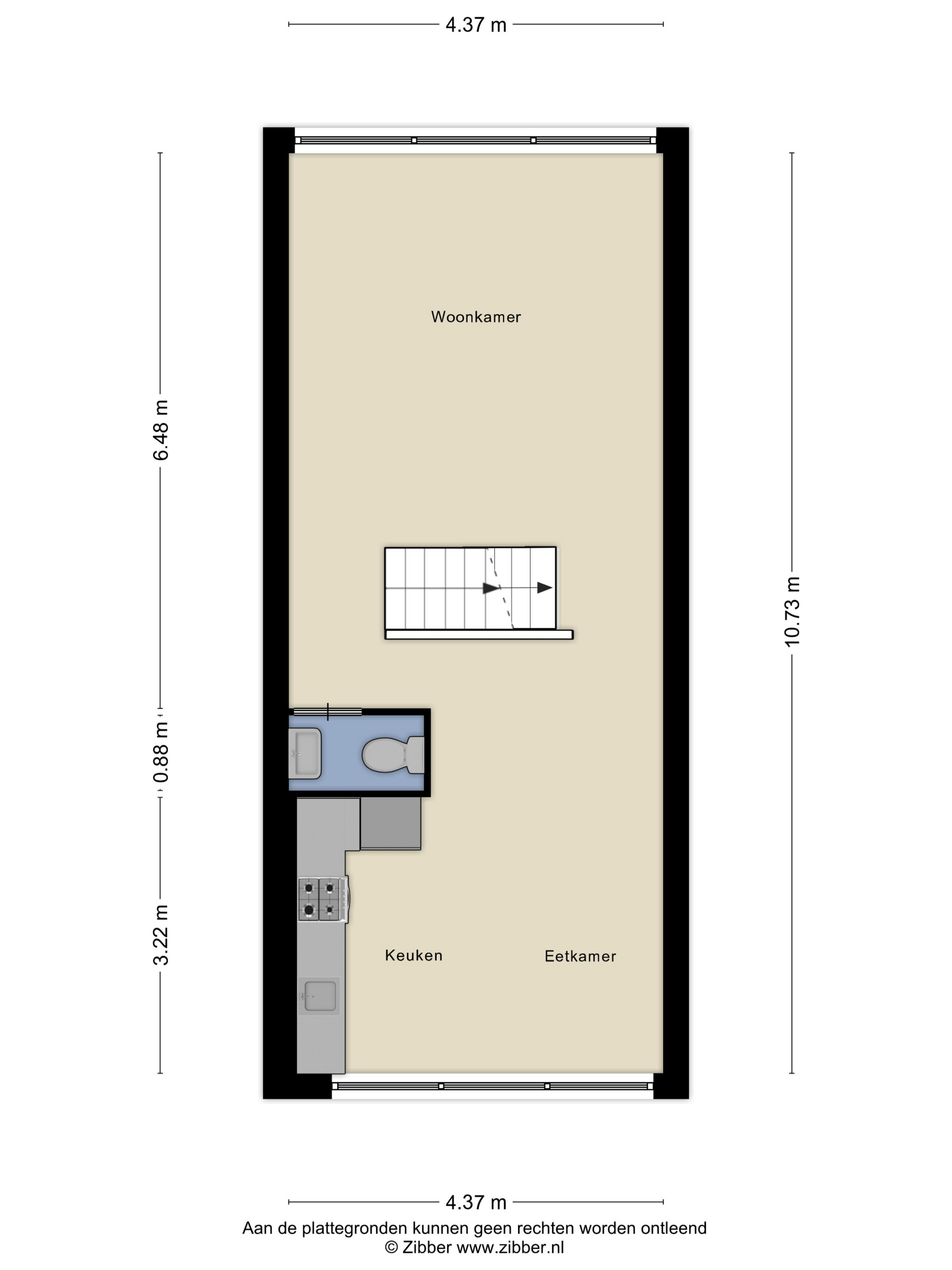
Eerste verdieping: Zodra je deze living binnenstapt word je verrast door de heerlijke lichtinval die deze verdieping te bieden heeft. Met grote raampartijen aan de voor-en-achterzijde en het open concept waar alle woondelen in verbinding staan met elkaar ervaar je hier een fijne ruimte. Aan de achterzijde van de woning is de open keuken gerealiseerd waarbij plaats is voor een eettafel. De woonkamer is aan de voorzijde van de woning gesitueerd en kijkt uit over het park met speelgelegenheid.
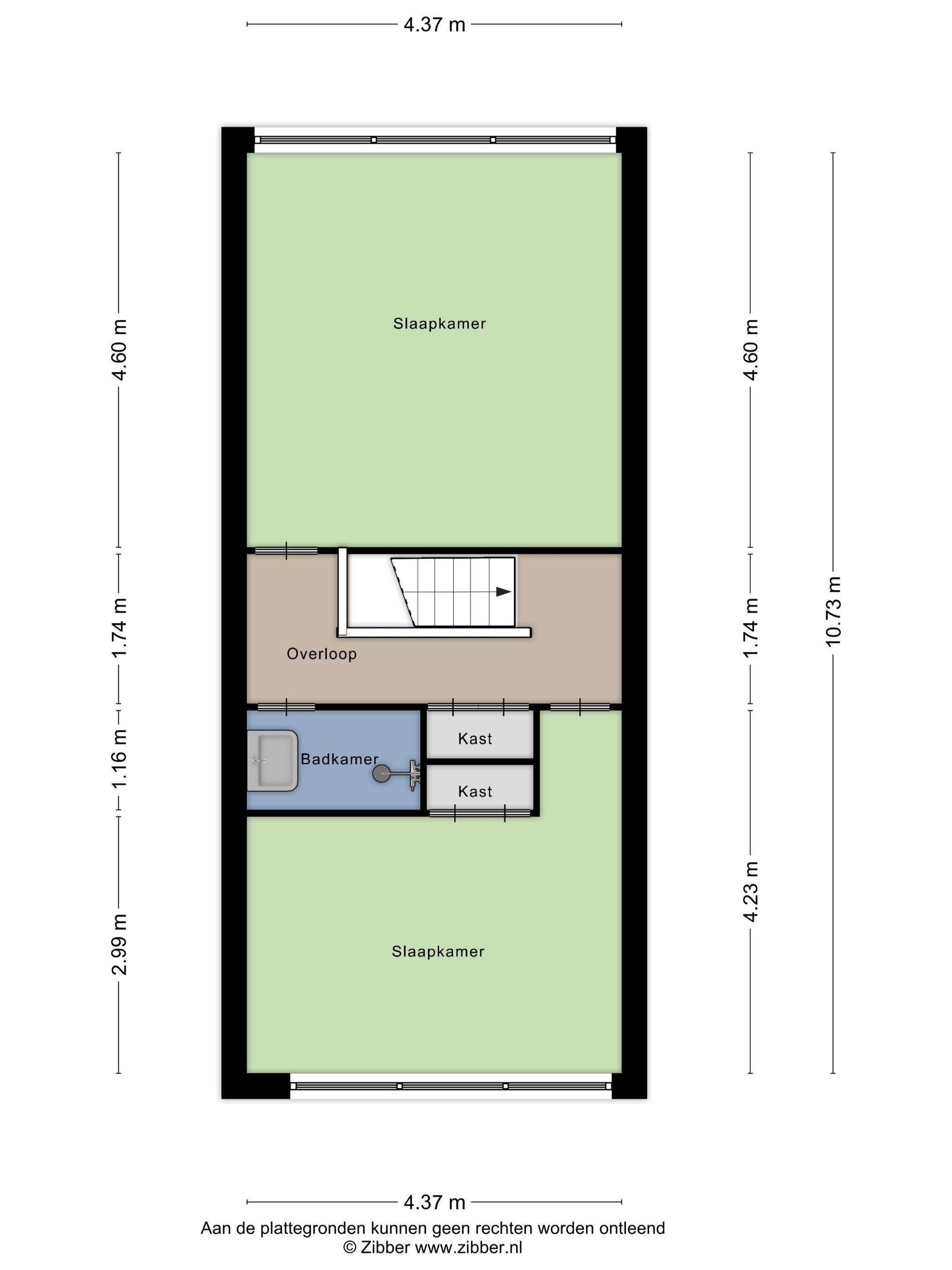
Tweede verdieping: Er zijn 2 royale slaapkamers aanwezig welke van mooi formaat zijn. Op deze verdieping zijn twee riante vaste kasten en mooie grote ramen voor een heerlijke lichtinval. Daarnaast bevindt op deze verdieping ook de badkamer welke voorzien is van een douche en wastafelmeubel.
Tuin: Wat een fijne achtertuin heb je hier! Door de privacy van de tuin kun je hier lekker genieten van de ochtendzon.
EXTRA informatie:
- Woonoppervlakte: 117 m² en inhoud: 474 m³
- Perceeloppervlakte: 96 m²
- Bouwjaar: 1967
- Rustig gelegen met groen uitzicht over het plein;
- Een op jouw situatie toegespitst duurzaamheidsadvies voor deze woning is beschikbaar via onze website.
EXTRA voorwaarden:
- Het woonhuis is ingemeten volgens de NEN2580 en is voorzien van een meetrapport.
- Voor woningen ouder dan 25 jaar is de ouderdomsclausule van toepassing.
- Indien het woonhuis niet is bewoond door verkoper is de niet-bewoningsclausule van toepassing.
- In de koopovereenkomst zal een 10% waarborgsom of bankgarantie worden opgenomen.
- Aanvaarding: in overleg.
- Er is pas sprake van een koopovereenkomst als beide partijen de koopovereenkomst hebben ondertekend. Dit betreft het zogenaamde schriftelijkheidsvereiste.



