Wieringermeerstraat 14, Enschede
Welkom aan de Wieringermeerstraat 14: een fijne tussenwoning in een rustige en gemoedelijke woonwijk in Enschede. Hier woon je in een prettige buurt met veel groen, brede straten en alle dagelijkse voorzieningen binnen handbereik. Supermarkten, scholen, speeltuinen en openbaar vervoer liggen op korte afstand en ook het centrum van Enschede is snel bereikbaar. Een ideale plek voor starters, jonge gezinnen of iedereen die rustig wil wonen met alles dichtbij.
Deze goed onderhouden tussenwoning uit 1960 combineert een praktische indeling met verrassend veel ruimte. Bij binnenkomst kom je in de entree met toilet, trapopgang en toegang tot de ruime woonkamer. De woonkamer is heerlijk licht en biedt voldoende plek voor een gezellige zithoek én een eettafel.
De keuken bevindt zich aan de achterzijde van de woning en staat in verbinding met de bijkeuken/berging. Vanuit hier loop je zo door naar de achtertuin. De tuin is onderhoudsvriendelijk aangelegd en beschikt over een overkapping (2022), waardoor je hier bijna het hele jaar door beschut kunt zitten.
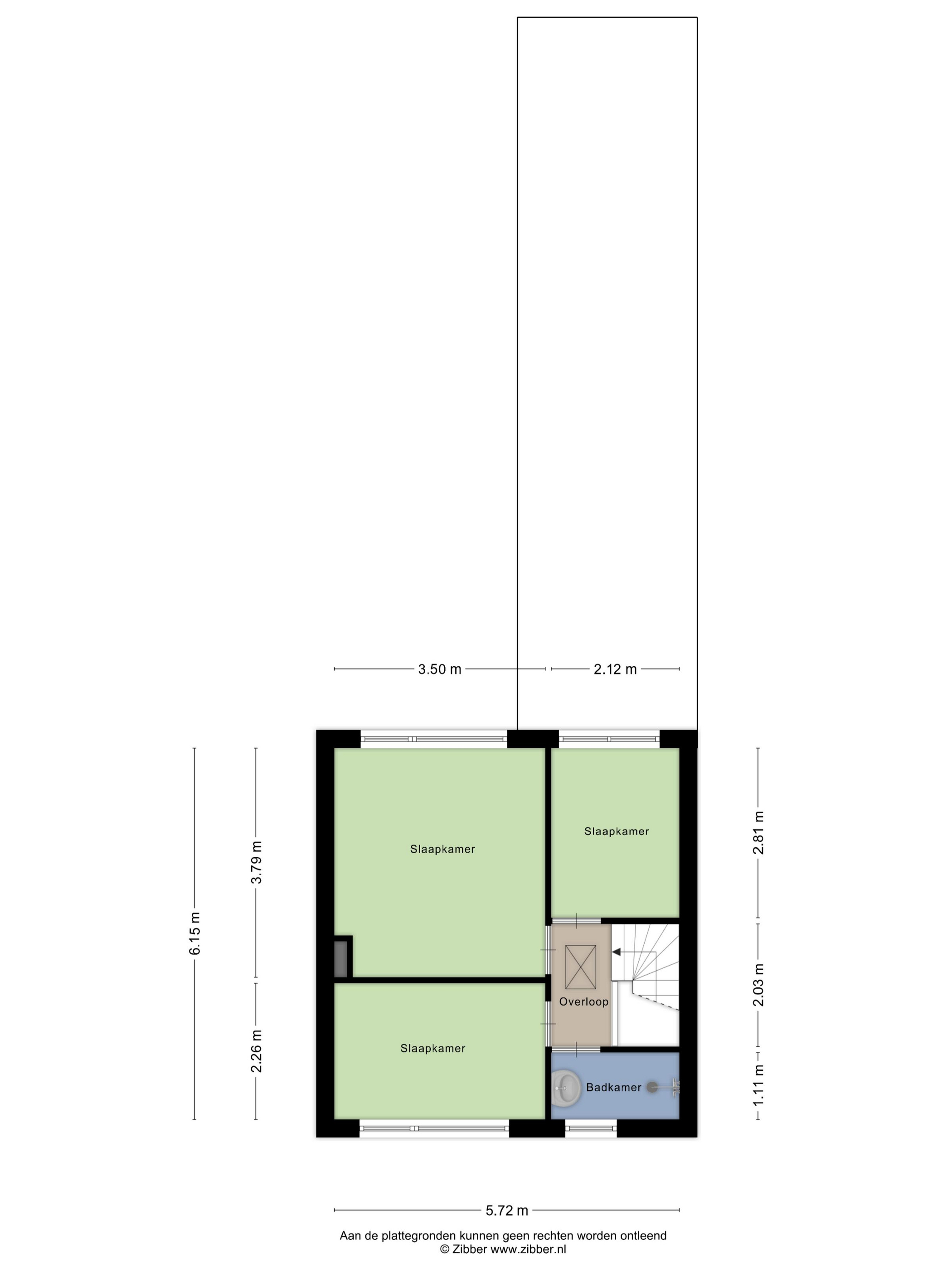
Op de eerste verdieping bevinden zich drie slaapkamers en een badkamer. De kamers zijn praktisch van formaat en flexibel in te delen, bijvoorbeeld als slaap-, werk- of hobbykamer. De badkamer is netjes en voorzien van een douche en wastafel.
Via een vlizo trap bereik je de zolderverdieping. Deze ruimte is ideaal als extra opslag.
De woning is bovendien voorzien van kunststof kozijnen met HR+ beglazing, een cv-ketel (Remeha, 2020) en 5 zonnepanelen (2023), wat bijdraagt aan het wooncomfort en lagere energielasten.
Kortom: Een fijne, complete tussenwoning met een goede basis, een prettige tuin én gelegen in een rustige en geliefde woonomgeving. Hier hoef je alleen nog maar je spullen neer te zetten!
EXTRA informatie:
- Rustige en groene woonwijk;
- Drie slaapkamers + zolder;
- Onderhoudsvriendelijke tuin met overkapping;
- Kunststof kozijnen, HR+ glas en zonnepanelen;
- Cv-ketel uit 2020 (eigendom).
EXTRA voorwaarden:
- Het woonhuis is ingemeten volgens de NEN2580 en is voorzien van een meetrapport.
- Voor woningen ouder dan 25 jaar is de ouderdomsclausule van toepassing.
- Indien het woonhuis niet is bewoond door verkoper is de niet-bewoningsclausule van toepassing.
- In de koopovereenkomst zal een 10% waarborgsom of bankgarantie worden opgenomen.
- Aanvaarding: in overleg.
- Er is pas sprake van een koopovereenkomst als beide partijen de koopovereenkomst hebben ondertekend. Dit betreft het zogenaamde schriftelijkheidsvereiste.



