Ypelobrink 110, Enschede
Je bent van harte welkom om deze royale, zeer goed onderhouden en nagenoeg geheel gerenoveerde en gemoderniseerde drive-in woning te komen bezichtigen!
De woning is voorzien van een ruime inpandige garage met witgoedaansluitingen, een extra slaapkamer op de begane grond, waardoor er in totaal 4 slaapkamers zijn, een verruimde en vernieuwde badkamer, een separaat hangcloset op de eerste verdieping, een sfeervolle woonkamer en een ruime woonkeuken met een moderne en grote hoekkeuken.
De woning is gelegen aan een rustige, kindvriendelijke straat met voldoende parkeergelegenheid en centraal gelegen ten opzichte van een winkelcentrum, scholen, het buitengebied, uitvalswegen en diverse voorzieningen.
Indeling:
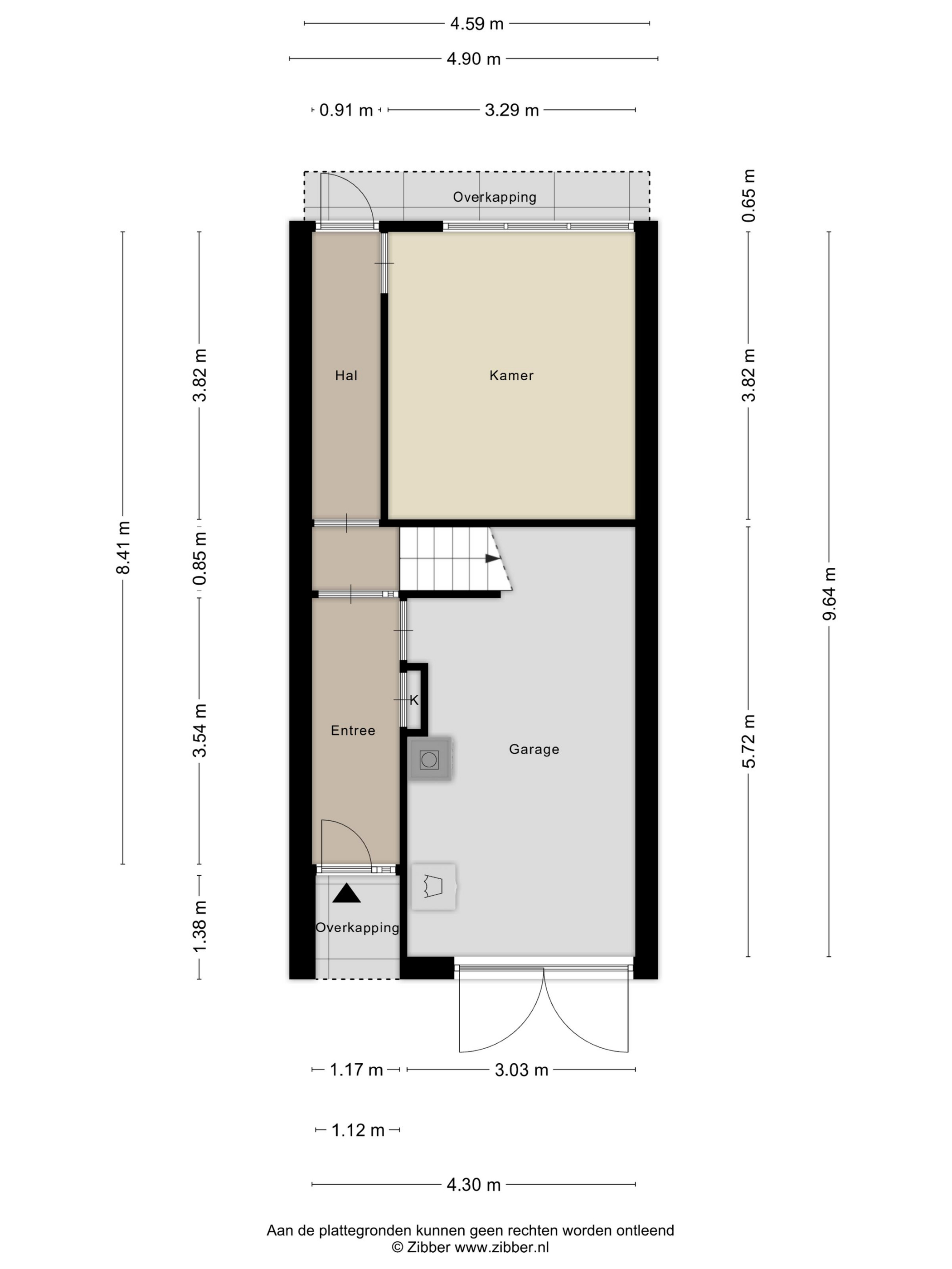
Begane grond: Via de overdekte entree stap je de woning binnen via de hal met meterkast en trapopgang. Vanuit hier is er toegang tot de ruime garage met dubbele deuren aan de voorzijde — ideaal voor hobby of opslag. Aan de achterzijde bevindt zich een tweede hal met toegang tot een royale kamer die uitkijkt op de tuin.
Eerste verdieping: De eerste verdieping is een open en lichte leefruimte. Aan de voorzijde bevindt zich de moderne keuken met volop werk- en kastruimte, perfect voor kookliefhebbers. Er is plaats voor een ruime eethoek en aansluitend een gezellige woonkamer aan de achterzijde, waar het grote raam voor veel lichtinval zorgt. Hier heb je een prachtig uitzicht op de tuin.
Tweede verdieping: De tweede verdieping telt drie slaapkamers van een goed formaat. De overloop verbindt alle vertrekken en biedt ruimte voor een kast of werkplek. De badkamer is praktisch ingedeeld met een douche en een wastafel. Naast de badkamer zit een separaat toilet. De slaapkamers zijn netjes afgewerkt en dankzij de rechte gevels goed in te richten.
Tuin: De diepe achtertuin is verzorgd aangelegd met een groot terras, bestrating en een groene border. Hier is alle ruimte om te ontspannen, te spelen of te genieten van lange zomerse avonden.
EXTRA informatie:
- Ruime woning met drie volwaardige woonlagen;
- Lichte woonkamer met open keuken en eetgedeelte;
- Diepe achtertuin met overkapping en privacy;
- Garage aanwezig, multifunctioneel te gebruiken;
- Gelegen in een rustige en kindvriendelijke omgeving.
- Kosten VvE zijn € 80, per maand.
- Er is een zelfbewoningsplicht.
EXTRA voorwaarden:
- Het woonhuis is ingemeten volgens de NEN2580 en is voorzien van een meetrapport.
- Voor woningen ouder dan 25 jaar is de ouderdomsclausule van toepassing.
- Indien het woonhuis niet is bewoond door verkoper is de niet-bewoningsclausule van toepassing.
- In de koopovereenkomst zal een 10% waarborgsom of bankgarantie worden opgenomen.
- Er is pas sprake van een koopovereenkomst als beide partijen de koopovereenkomst hebben ondertekend. Dit betreft het zogenaamde schriftelijkheidsvereiste.
- Aanvaarding: in overleg.
