Spinnersweg 6, Overdinkel
Instapklare twee-onder-een-kapwoning met slaapkamer en badkamer op de begane grond.
Op een rustige en groene locatie aan de Spinnersweg ligt deze verrassend ruime twee-onder-een-kapwoning.
De woning is keurig onderhouden, modern afgewerkt en biedt een fijne leefruimte met o.a. een royale woonkamer, complete keuken, slaapkamer met badkamer op de begane grond én een multifunctionele werkkamer aan de voorzijde. Ideaal voor wie comfortabel wil wonen met alle voorzieningen op de begane grond!
Indeling
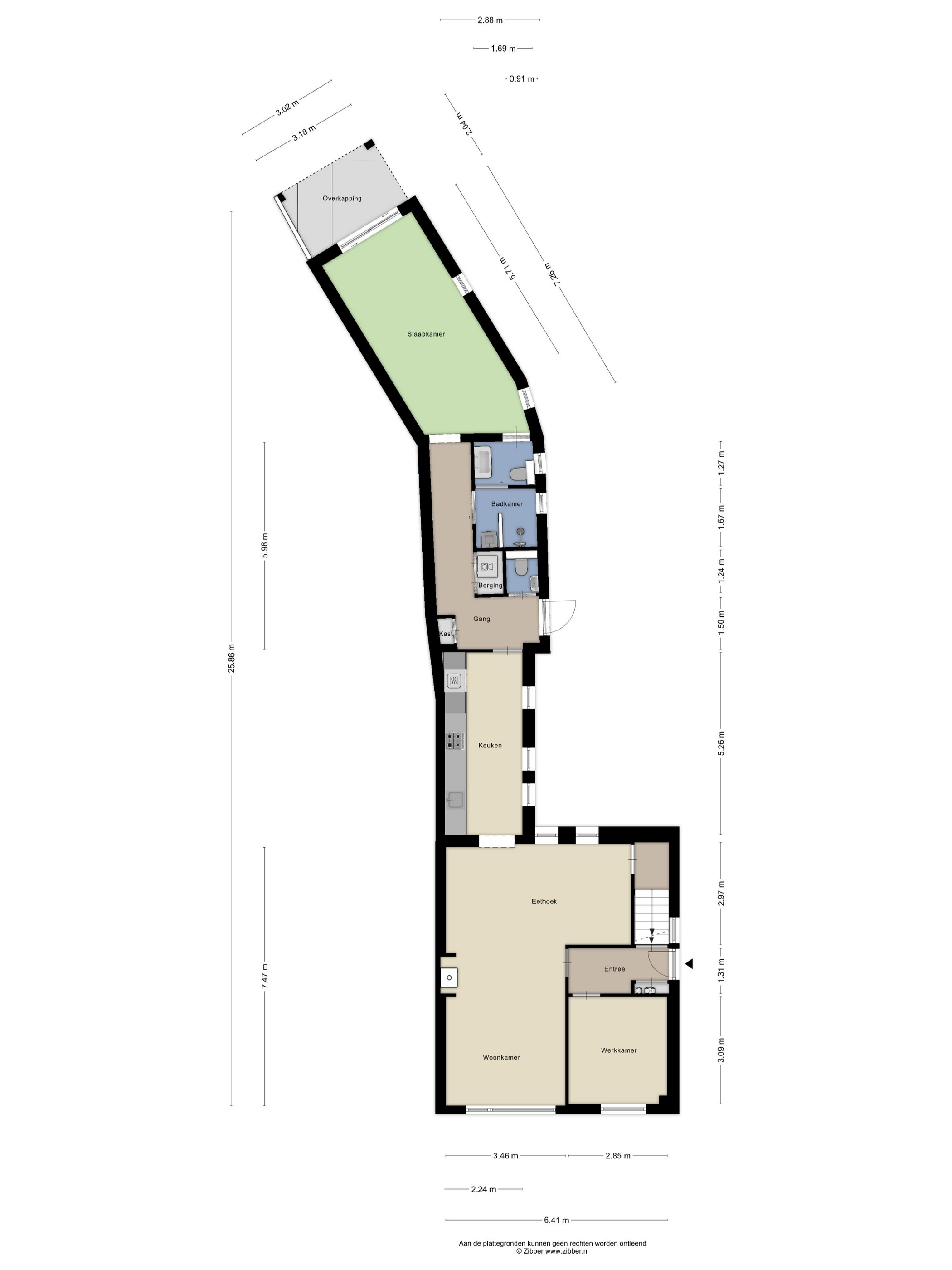
Begane grond: Via de voordeur aan de zijkant van de woning kom je binnen in de entree met moderne tegelvloer en nette afwerking. In de hal bevinden zich de meterkast, trapopgang en de werkkamer. De lichte woonkamer is sfeervol ingericht met een strakke wandafwerking, grote raampartij en een gezellige houtkachel. Aansluitend bevindt zich de eethoek met ruimte voor een grote eettafel en toegang tot de moderne keuken.
De moderne keuken is in een rechte opstelling uitgevoerd met witte fronten en een donker werkblad, voorzien van diverse inbouwapparatuur zoals een inductiekookplaat, afzuigkap, oven, magnetron en vaatwasser. Dankzij de combinatie van lichte kleuren en veel lichtinval is dit een heerlijke plek om te koken en te genieten.
Achter de keuken bevindt zich de bijkeuken, met aansluitingen voor de wasmachine en droger. Vanuit hier zijn het gastentoilet, de badkamer en de slaapkamer bereikbaar. Het extra toilet in de bijkeuken is ideaal voor gasten en dagelijks gebruik.
De slaapkamer aan de achterzijde heeft tevens directe toegang tot een eigen badkamer en separate toilet, bereikbaar via een schuifdeur, wat zorgt voor extra comfort en gemak. De moderne badkamer is volledig betegeld en voorzien van een inloopdouche met stortdouche en handdouche en een wastafelmeubel.
Vanuit de slaapkamer is er bovendien directe toegang tot de achtertuin met overkapping, een fijne plek om buiten te zitten en te ontspannen.
De kamer aan de voorzijde van de woning wordt momenteel gebruikt als kantoor. Deze ruimte is ideaal voor thuiswerken, maar kan ook dienst doen als hobbykamer of extra speelruimte.
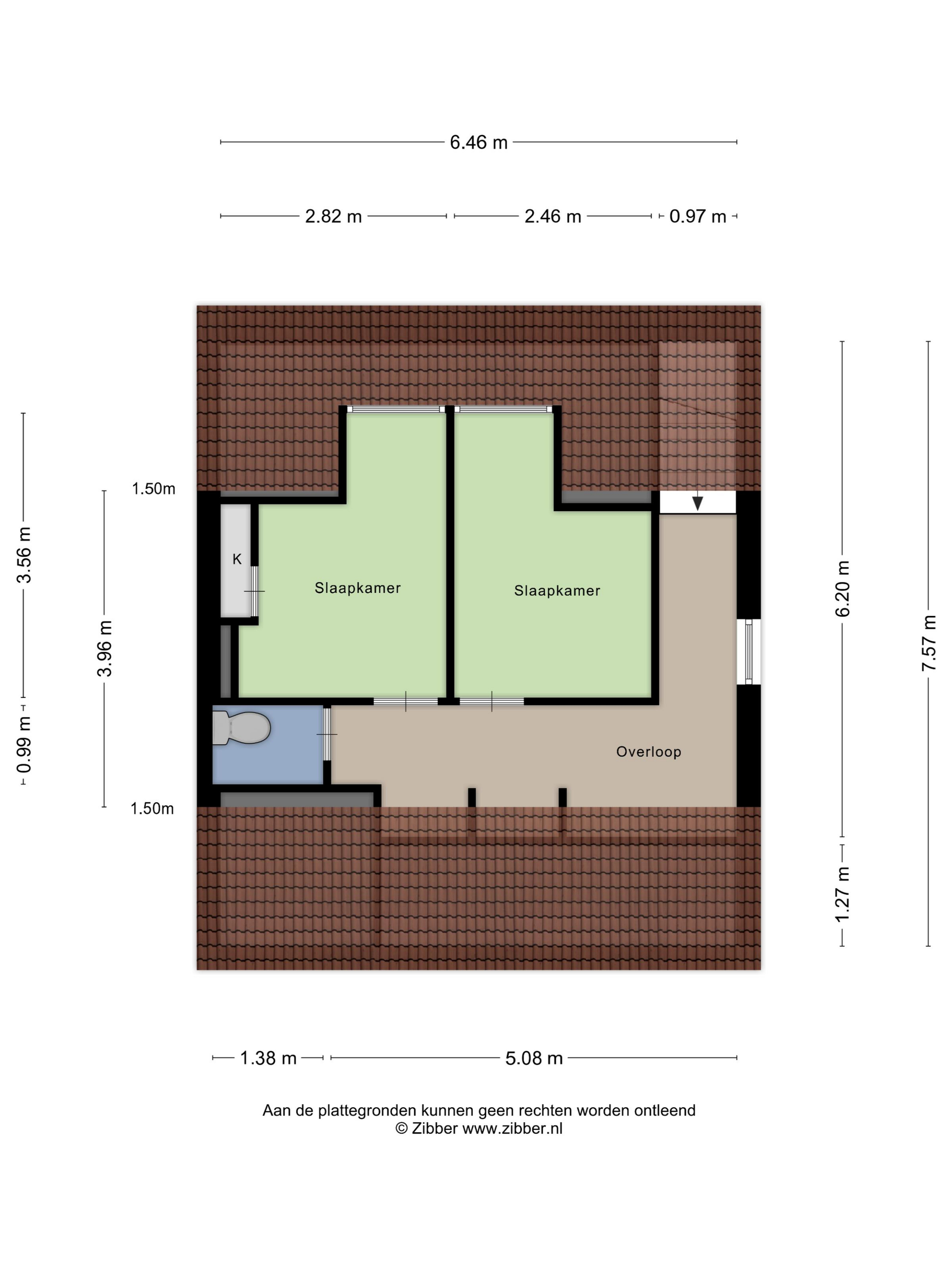
1e verdieping: Via de vaste trap bereik je de eerste verdieping. Vanaf de ruime overloop heb je toegang tot twee slaapkamers en een tweede toilet met wastafel.
Beide slaapkamers zijn netjes afgewerkt met een laminaatvloer en lichte wanden, wat zorgt voor een frisse en verzorgde uitstraling. De kamers beschikken over een raampartij die zorgt voor veel natuurlijke lichtinval en bieden voldoende ruimte voor een bed, kledingkast of bureau.
Deze verdieping biedt daarnaast diverse opbergruimten, waarbij de ruime overloop is voorzien van nissen en een inbouwkast, ideaal voor het opbergen van kleding, linnengoed of seizoensspullen.
Tuin: De achtertuin is verzorgd aangelegd en biedt een heerlijke plek om buiten te genieten. Direct achter de woning bevindt zich een fijne overkapping, ideaal om een loungehoek te creëren waar je ook bij minder mooi weer kunt ontspannen.
Verderop in de tuin is nog een tweede, ruime overkapping met berging, perfect geschikt voor een eettafel of buitenkeuken. Hier kun je beschut genieten van het buitenleven, terwijl er ook voldoende bergruimte is voor tuinmeubelen, fietsen of haardhout. De tuin is grotendeels voorzien van bestrating en kunstgras, wat zorgt voor een onderhoudsvriendelijke en nette uitstraling.
Aan de zijkant van de woning bevindt zich een afsluitbare poort met doorgang naar de voorzijde. De voortuin is netjes aangelegd met sierbestrating en beplanting. Op de ruime oprit is plaats voor meerdere auto’s, zodat je altijd comfortabel op eigen terrein kunt parkeren.
EXTRA informatie:
- Energielabel D.
- Instapklaar.
- Baden en slapen op de begane grond.
- De woning is voorzien van kunststof kozijnen met HR++ beglazing.
- Rehema cv-ketel (2018).
- De woning is voorzien van 12 zonnepanelen.
- Badkamer en keuken (2018).
- De woning beschikt over drie ruime slaapkamers.
- Het platte dak heeft in 2024 nieuwe dakbedekking gekregen.
- Bouwjaar: 1926, woonoppervlakte: 128 m², inhoud: ca. 452 m³, perceeloppervlakte: 325 m².
EXTRA voorwaarden:
- Het woonhuis is ingemeten volgens de NEN2580 en is voorzien van een meetrapport.
- Voor woningen ouder dan 25 jaar is de ouderdomsclausule van toepassing.
- Indien het woonhuis niet is bewoond door verkoper is de niet-bewoningsclausule van toepassing.
- In de koopovereenkomst zal een 10% waarborgsom of bankgarantie worden opgenomen.
- Aanvaarding: in overleg.
- Er is pas sprake van een koopovereenkomst als beide partijen de koopovereenkomst hebben ondertekend. Dit betreft het zogenaamde schriftelijkheidsvereiste.
