Burgemeester Jacobsstraat 40, Enschede
Instapklare jaren ’30 gezinswoning met vier slaapkamers!
In een gezellige straat ligt deze verzorgde en instapklare twee-onder-een-kapwoning uit de jaren ’30. De woning beschikt over een lichte woonkamer aan de voorzijde, een moderne keuken aan de achterzijde, een nette badkamer met separaat toilet en vier slaapkamers. Een ideale woning voor starters of jonge gezinnen die comfortabel willen wonen met alle voorzieningen binnen handbereik.
Indeling
Begane grond:
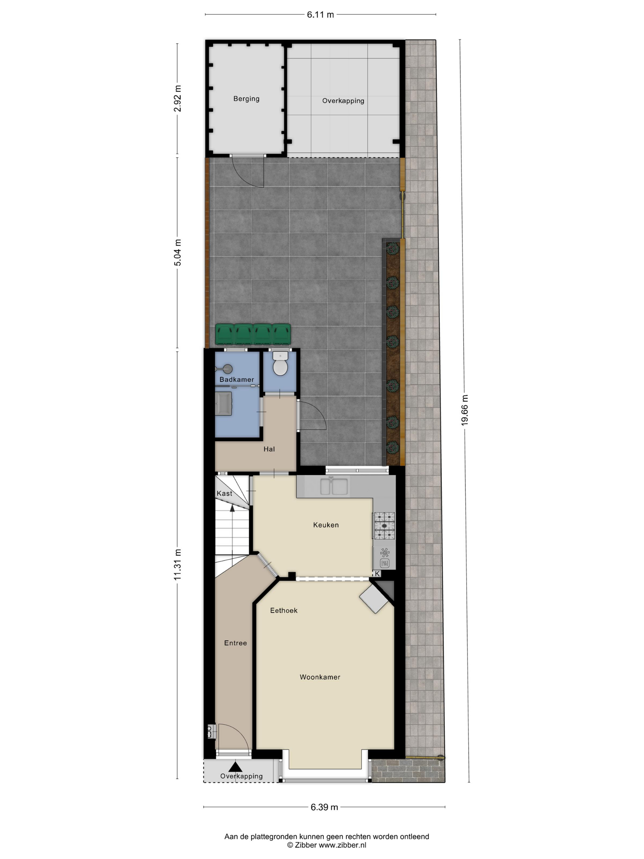
Je komt binnen in de lange hal met toegang tot de trapopgang naar de eerste verdieping en de deur naar de keuken waarbij je via de keuken toegang hebt tot woonkamer.
Aan de voorzijde van de woning bevindt zich de lichte en gezellige woonkamer. Dankzij de grote raampartij is er veel natuurlijke lichtinval. De afwerking is strak, met een warme vloer en neutrale tinten, wat zorgt voor een moderne en huiselijke sfeer.
Vanuit de woonkamer heb je een mooi doorkijkje richting de keuken. Hierdoor voelt het geheel open en verbonden aan. De eethoek bevindt zich centraal tussen beide ruimtes.
De open keuken bevindt zich aan de achterzijde van de woning. De keuken is modern uitgevoerd in een lichte kleurstelling met een donker werkblad en voorzien van diverse inbouwapparatuur, waaronder een gaskookplaat, afzuigkap, combi-oven, vaatwasser en koelkast.
Vanuit de keuken is er toegang tot de trapkast voor extra bergruimte en een doorgang naar de bijkeuken. Vanuit deze ruimte kun je naar de badkamer, het separate toilet en de achtertuin.
De moderne badkamer is volledig betegeld en voorzien van een inloopdouche, wastafelmeubel met spiegelkast en een extra opbergkast.
1e verdieping: Vanaf de overloop heb je toegang tot drie slaapkamers en de trap naar de tweede verdieping. De kamers zijn stuk voor stuk licht en praktisch ingedeeld, met voldoende ruimte voor een bed en kastruimte.
2e verdieping: Via een vaste trap bereik je de zolderverdieping. Deze ruimte is keurig afgewerkt en voorzien van een groot dakraam, waardoor er veel natuurlijk licht binnenvalt. De ruimte is nu in gebruik als extra slaapkamer, maar leent zich ook uitstekend als werk- of hobbykamer.
Tuin: De achtertuin is volledig bestraat en daardoor onderhoudsvriendelijk. Achter in de tuin bevindt zich een praktische berging met daarnaast een gezellige overkapping. De overkapping biedt ruimte voor een comfortabele loungeset en grenst direct aan de berging, waar je gemakkelijk fietsen, gereedschap of tuinspullen kunt opbergen. Dankzij de achterom is de tuin bovendien goed bereikbaar en prettig in gebruik.
EXTRA informatie:
- Energielabel F.
- De gehele benedenverdieping is voorzien van isolerende beglazing. Ook het raam op de zolderverdieping is voorzien van isolerende beglazing.
- Intergas cv-ketel.
- Badkamer is gerenoveerd in 2021.
- Keuken geplaatst in 2023.
- Goed onderhouden.
- Instapklaar.
- De woning beschikt over 4 slaapkamers.
- Bouwjaar: 1939, woonoppervlakte: 92 m², inhoud: ca. 327 m³, perceeloppervlakte: 122 m².
EXTRA voorwaarden:
- Het woonhuis is ingemeten volgens de NEN2580 en is voorzien van een meetrapport.
- Voor woningen ouder dan 25 jaar is de ouderdomsclausule van toepassing.
- Indien het woonhuis niet is bewoond door verkoper is de niet-bewoningsclausule van toepassing.
- In de koopovereenkomst zal een 10% waarborgsom of bankgarantie worden opgenomen.
- Aanvaarding: in overleg.
- Er is pas sprake van een koopovereenkomst als beide partijen de koopovereenkomst hebben ondertekend. Dit betreft het zogenaamde schriftelijkheidsvereiste.
