Haarlebrink 34, Enschede
Met vrij uitzicht vanuit de woning, op één van de leukste brinken, een keurige en deels luxe ingerichte, op de hoek gelegen, ruime hobbykamer-, drive-in woning, met inpandige garage en werk- of slaapkamer op de begane grond aan de achterzijde.
Indeling:
Begane grond: Entree, hal, binnen doorgang naar de aan de voorzijde gelegen garage, de trapopgang in het midden en daarachter een ruime kamer, welke als werk-, hobbykamer in gebruik is, maar ook als slaapkamer ingericht en gebruikt kan worden.
1e Verdieping: Overloop met open verbinding tussen enerzijds de achtergelegen woonkamer en de woonkeuken, welke aan de voorzijde is gesitueerd. Bij de open trapopgang naar de tweede verdieping is het toilet te vinden.
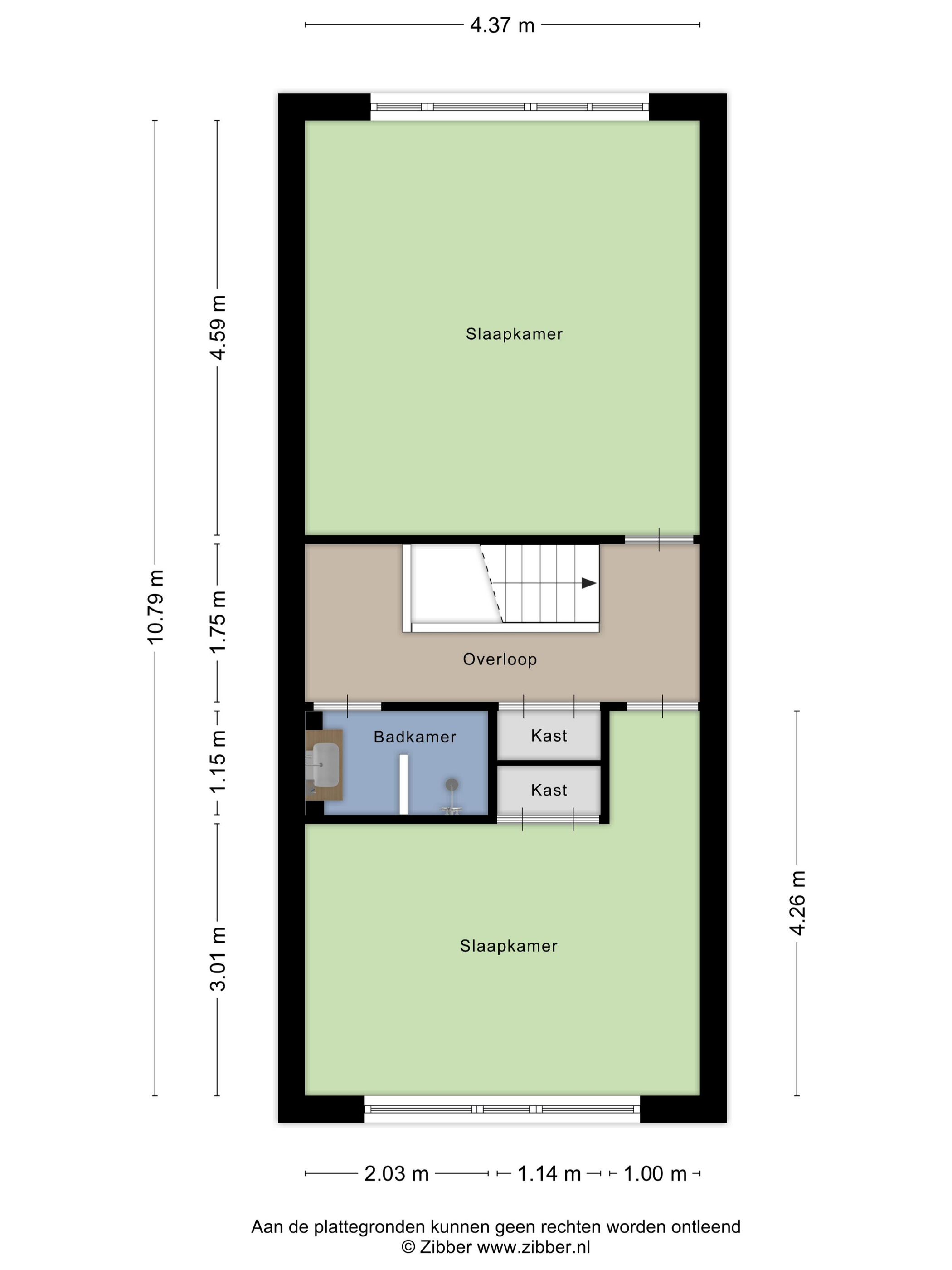
2e Verdieping: Overloop, twee slaapkamers, voorheen drie, hetgeen eenvoudig weer om te zetten is, badkamer en bergruimte.
De woning is voorzien van kunststof kozijnen en gevelbeplating en de zijgevel is in 2018 gereinigd en geïmpregneerd, waardoor het onderhoudsarm is. Er is sprake van energielabel C, mede door grotendeels isolerende beglazing, dak- en spouwisolatie. De energiekosten zijn hierdoor goed beheersbaar.
EXTRA Informatie:
- Bouwjaar 1967, perceel 101 m², woonoppervlakte 118 m².
- Inpandige garage en werken of slapen op de begane grond.
- Keurig en duurzaam afgewerkt, waardoor weinig onderhoud.
- Mogelijkheid voor vier of zelfs vijf slaapkamers.
- Vrij uitzicht en rustig aan één van de leukste brinken.
- Nabij allerlei openbare voorzieningen.
- Centraal nabij invalswegen en de A35.
EXTRA voorwaarden:
- Het woonhuis is ingemeten volgens de NEN2580 en is voorzien van een meetrapport.
- Voor woningen ouder dan 25 jaar is de ouderdomsclausule van toepassing.
- Indien het woonhuis niet is bewoond door verkoper is de niet-bewoningsclausule van toepassing.
- In de koopovereenkomst zal een 10% waarborgsom of bankgarantie worden opgenomen.
- Aanvaarding: in overleg.
- Er is pas sprake van een koopovereenkomst als beide partijen de koopovereenkomst hebben ondertekend. Dit betreft het zogenaamde schriftelijkheidsvereiste.
