Hofstedeweg 190, Enschede
Gelegen in de wijk ’t Wooldrik, nabij het centrum en diverse openbare voorzieningen, een uitgebouwde tussenwoning met een extra bovenbouw ten behoeve van een grote badkamer. De woning heeft een grote schuur achter in de op het zuiden gelegen diepe tuin. Voortgezet Onderwijs, Basisschool, voetbalvereniging en tennisvereniging en een prachtig groot winkelcentrum allen op steenworp afstand
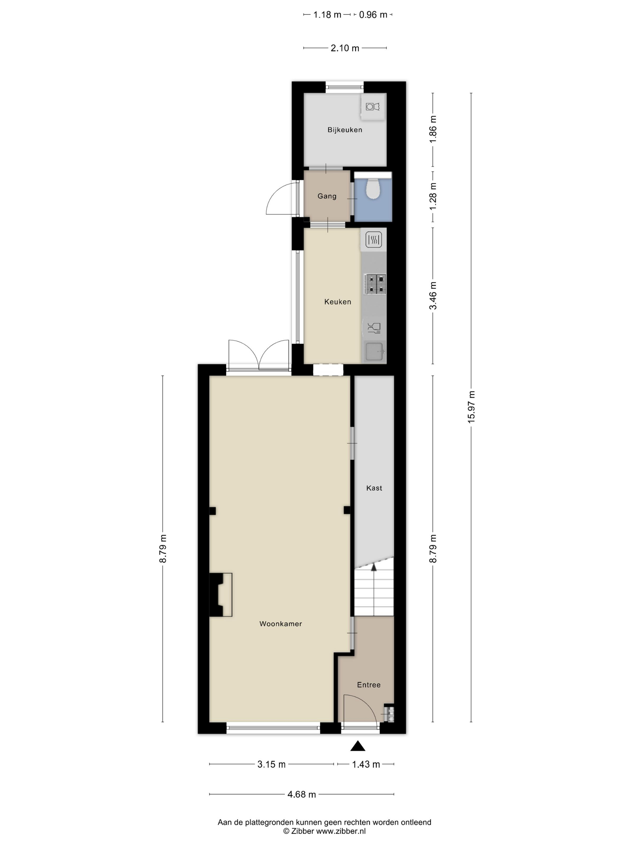
Indeling:
Begane grond: Entree, hal met trapopgang, uitgebouwde doorzon woonkamer met tuindeuren. Dichte keurige keuken v.v. diverse inbouwapparatuur, achteruitgang, toilet en bijkeuken. Daarnaast een verrassend ruime opbergkelder
1e Verdieping: Overloop, drie slaapkamers en ruime badkamer, in de op de achterzijde gerealiseerde opbouw, v.v. badkamer voorzien van vloerverwarming, spiegelverwarming en ligbad met whirlpoolfunctie, aparte inloopdouche, tweede toilet en dubbel wastafelmeubel.
Zolder: Middels vlizotrap te bereiken zolderverdieping, welke in gebruik is als zeer ruime bergruimte.
Tuin: De tuin is zonnig en ligt op het zuiden. Deze is voorzien van een grote schuur, achter in de tuin.
Algemeen: Gelegen in de gewilde wijk ’t Wooldrik, nabij ’t Wooldrikspark, diverse openbare voorzieningen, invalswegen en het centrum.
Energie: Het huis heeft energielabel D. het is voorzien van houten en kunststof kozijnen met isolerende beglazing. De gehuurde cv ketel is uit 2012 en kan worden afgekocht. Verwarming is er tevens met een airco unit in de slaapkamer. Een open haard in de woonkamer, echter is deze sinds 2011 niet meer in gebruik geweest.
EXTRA Informatie:
- Bouwjaar 1963, perceel 172m2, woonoppervlakte 105m2.
- voorzien van uitbouw en dakopbouw.
- energielabel D.
- Airconditioning uit 2016, gehuurde CV-ketel uit 2012.
- Centraal gelegen in gewilde wijk. De kinderboerderij is op loopafstand en het Dinoveld (voetbalveld) ligt direct achter de woning.
- Een op jouw situatie toegespitst duurzaamheidsadvies voor deze woning is beschikbaar via onze website.
EXTRA voorwaarden:
- Het woonhuis is ingemeten volgens de NEN2580 en is voorzien van een meetrapport.
- Voor woningen ouder dan 25 jaar is de ouderdomsclausule van toepassing.
- Indien het woonhuis niet is bewoond door verkoper is de niet-bewoningsclausule van toepassing.
- In de koopovereenkomst zal een 10% waarborgsom of bankgarantie worden opgenomen.
- Aanvaarding: in overleg.
- Er is pas sprake van een koopovereenkomst als beide partijen de koopovereenkomst hebben ondertekend. Dit betreft het zogenaamde schriftelijkheidsvereiste.
