Mercuriusstraat 13, Enschede
Welkom aan de Mercuriusstraat 13 in Enschede, een leuke jaren ’30 hoekwoning met karakter, veel licht en een verrassende indeling. De woning ligt aan een rustige straat in de geliefde wijk Twekkelerveld, op korte afstand van winkels, scholen, openbaar vervoer en het centrum van Enschede.
Indeling
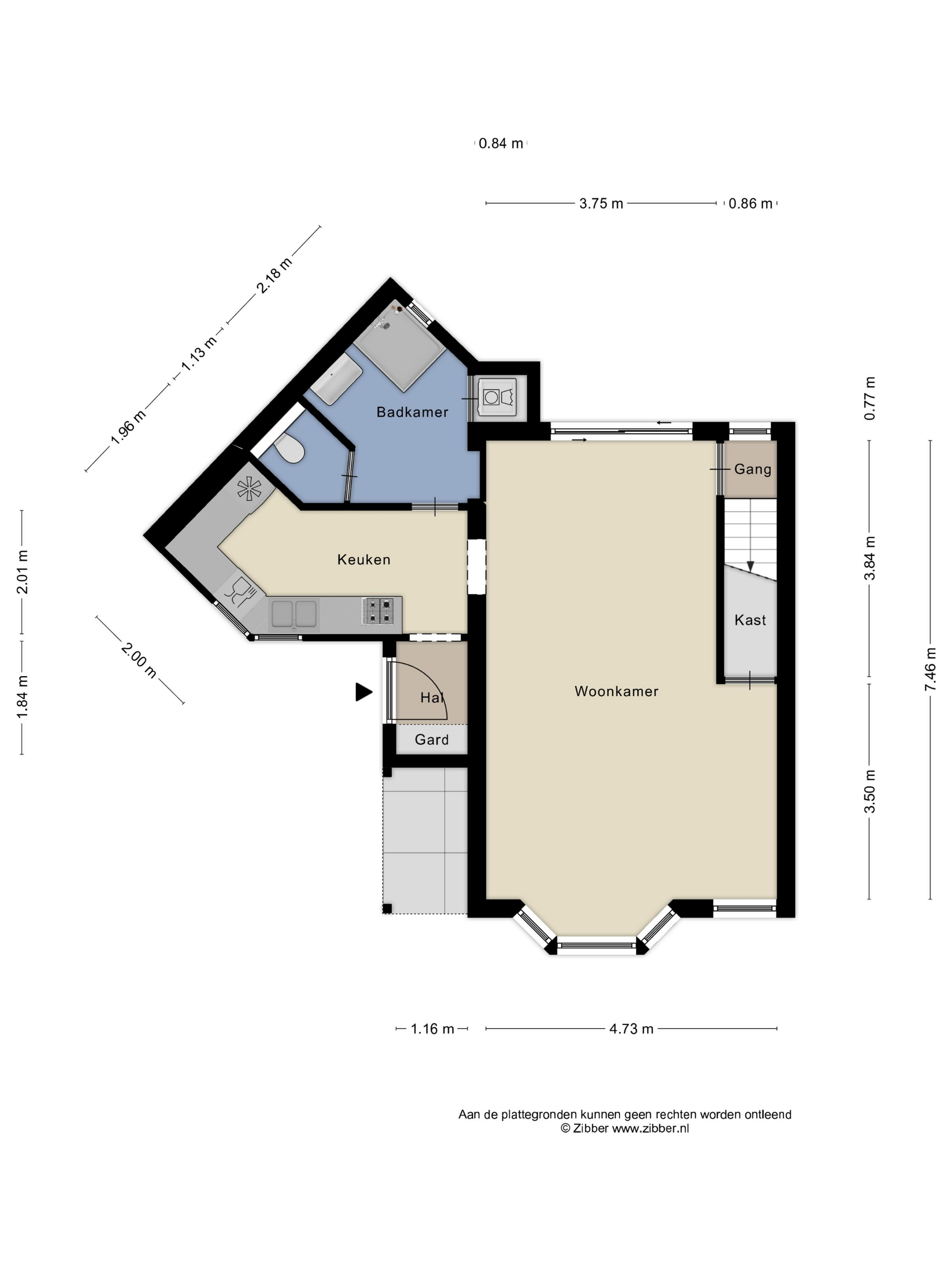
Begane grond: Binnenkomen doen we via de voordeur aan de zijkant van de woning, toegankelijk vanuit de zijtuin. Vanuit de hal stap je direct de keuken in. De keuken is voorzien van diverse inbouwapparatuur, waaronder een gasfornuis, oven en koelkast. Dankzij het grote raam is er veel natuurlijk licht, wat zorgt voor een prettige en open sfeer.
Aangrenzend aan de keuken bevindt zich de badkamer. Deze is volledig betegeld, praktisch ingedeeld en voorzien van een inloopdouche, een wastafelmeubel met opbergruimte en een spiegel. Het toilet bevindt zich eveneens in deze ruimte, maar is dankzij een eigen deur toch apart. Ook de wasmachineaansluiting vind je hier.
Vanuit de keuken is de woonkamer bereikbaar. Deze is ruim opgezet en geniet van veel lichtinval dankzij de grote ramen aan de voorzijde. De ruimte is sfeervol en biedt voldoende plaats voor zowel een zit- als eethoek.
De oorspronkelijke hal aan de voorzijde is bij de woonkamer betrokken, wat zorgt voor extra leefruimte.
Via de woonkamer is de hal met de trap naar de eerste verdieping bereikbaar.
1e verdieping: Vanaf de overloop is er toegang tot twee lichte en ruime slaapkamers. Dankzij de grote ramen valt er veel daglicht binnen. De kamers zijn praktisch in te delen en bieden voldoende ruimte voor een tweepersoonsbed en kastruimte, maar zijn ook zeer geschikt als kinderkamer of werkkamer.
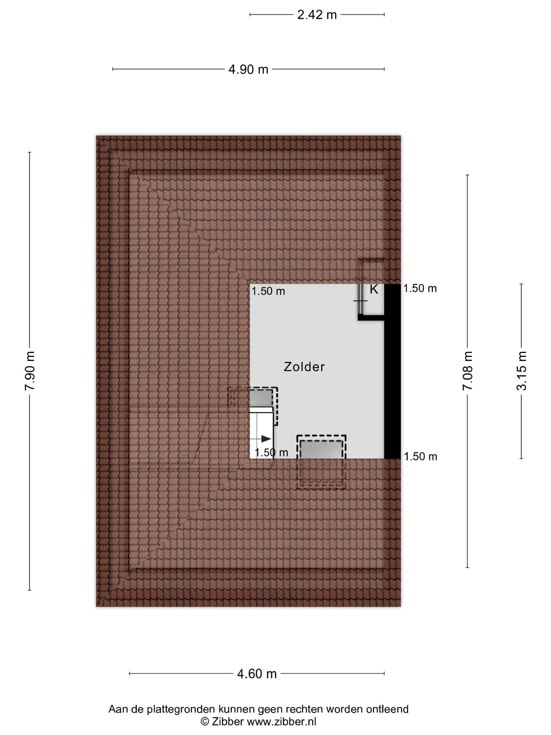
2e verdieping: De zolderverdieping is bereikbaar via een vaste trap. De ruimte is netjes afgewerkt met een moderne vloer en dankzij de twee grote dakramen komt er veel daglicht binnen. Hierdoor is de verdieping uitstekend geschikt als extra slaapkamer, werk- of hobbyruimte.
Tuin: De royale zijtuin is onderhoudsvriendelijk aangelegd en ligt heerlijk vrij, zonder inkijk. Doordat de tuin aan de zijkant van de woning ligt, is er volop privacy en rust. Via de handige zijpoort is de tuin eenvoudig bereikbaar. Onder de sfeervolle overkapping is een fijne plek gecreëerd om buiten te zitten, ongeacht het weer.
Aan de achterzijde van de woning bevindt zich nog een kleine patio. Hier is tevens een praktische berging aanwezig voor tuingereedschap.
EXTRA informatie:
- Energielabel E.
- De woning beschikt over twee ruime slaapkamers en biedt de mogelijkheid voor een derde slaapkamer op zolder.
- Onderhoudsvriendelijke tuin met een overkapping.
- In de achtertuin staat een berging.
- Voorzien van kunststof kozijnen.
- Grotendeels voorzien van isolerende beglazing.
- Remeha cv-ketel (2024)
- Op diverse plekken in de buurt bevinden zich grasvelden en speeltuintjes; ideaal voor de kleine en opgroeiende kinderen
- Winkelcentrum op loopafstand
- In de wijk zijn diverse openbare voorzieningen, zoals openbaar vervoer, Universiteit Twente, snelwegen, sport en zorgvoorzieningen, winkelcentra, basisscholen en voortgezet onderwijs.
- Een op jouw situatie toegespitst duurzaamheidsadvies voor deze woning is beschikbaar via onze website.
- Bouwjaar: 1930, woonoppervlakte: 94 m², inhoud: ca. 368 m³, perceeloppervlakte: 180 m².
EXTRA voorwaarden:
- Het woonhuis is ingemeten volgens de NEN2580 en is voorzien van een meetrapport.
- Voor woningen ouder dan 25 jaar is de ouderdomsclausule van toepassing.
- Indien het woonhuis niet is bewoond door verkoper is de niet-bewoningsclausule van toepassing.
- In de koopovereenkomst zal een 10% waarborgsom of bankgarantie worden opgenomen.
- Aanvaarding: in overleg.
- Er is pas sprake van een koopovereenkomst als beide partijen de koopovereenkomst hebben ondertekend. Dit betreft het zogenaamde schriftelijkheidsvereiste.
