Oosterstraat 77, Enschede
Deze bijzondere verrassende ruime en speels ingerichte eindwoning biedt veel leefruimte, waarbij hoogtes van de plafonds beperkt zijn op de eerste en tweede verdieping. Gelegen aan een rustige fietsstraat, nabij het centrum en aan het verdiept spoor. Vanuit de woning is geen zicht op de ruime afgesloten achtertuin, maar aansluitend is er wel de mogelijkheid voor praktijk aan huis of een inwonende ouder of hulpbehoevend kind, vanwege de apart achtergelegen ruimte, met eigen voorzieningen.
Indeling
Begane grond: Zij-entree, kleine hal met trapopgang, straat gerichte woonkamer, iets hoger gelegen oude keuken met toegang tot de kelder (3,80 x 4,50) en achtergelegen toilet en bijkeuken.
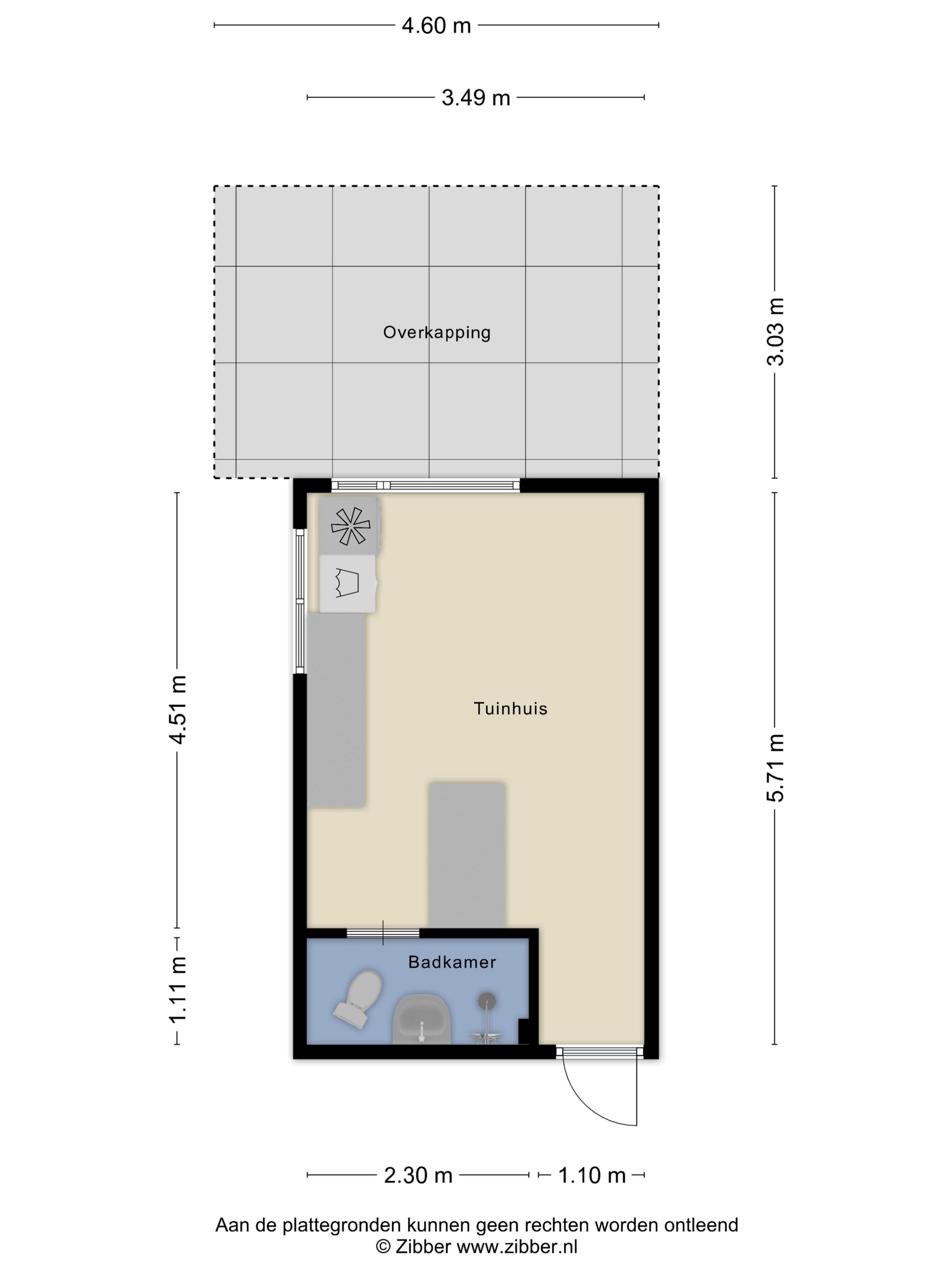
Vanuit de tuin, met eigen ingang te bereiken vrijstaande bijbouw, welke in gebruik is geweest als aparte woonruimte, met eigen keuken en sanitair.
1e verdieping: Overloop, twee slaapkamers, oude badkamer v.v. ligbad, douche, tweede toilet en wastafel.
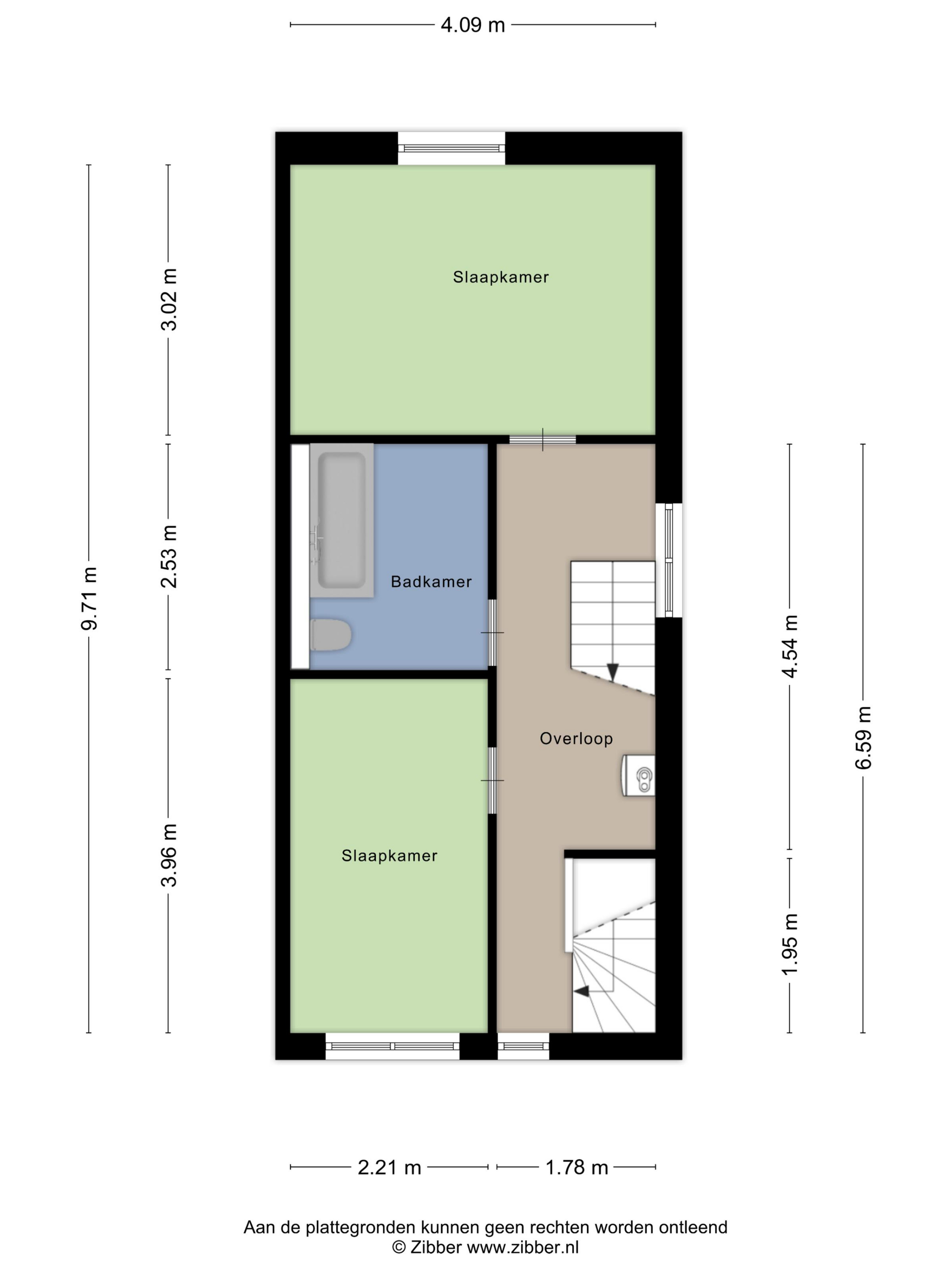
2e verdieping: Overloop, twee slaapkamers en bergruimte
Zolder: Door middel van vlizotrap te bereiken bergruimte.
Tuin: De diepe tuin is op het noorden gelegen en zonnig te noemen. Achterin is een houten chalet gesitueerd met aangebouwde overkapping. Vanuit de woning is er geen direct zicht op de tuin.
Energie: Het huis heeft energielabel F en is gedeeltelijk v.v. isolerende beglazing en wordt verwarmd en van warm water voorzien door de cv combiketel ……
Algemeen: Gelegen aan een rustige fietsstraat, centraal op loopafstand van het centrum en diverse voorzieningen. De achterbouw biedt diverse mogelijkheden, zoals kantoor aan huis of inwonende kind of ouder.
EXTRA Informatie:
- www.oosterstraat77.nl
- Bouwjaar 1897, perceel 262m2, woonoppervlak 150m2.
- Kantoor en inwonend kind of ouder mogelijk.
- Rustig en centraal gelegen.
- Vier slaapkamers en ruime kelder
- Plafonds op de verdiepingsvloeren zijn laag.
EXTRA voorwaarden:
- Het woonhuis is ingemeten volgens de NEN2580 en is voorzien van een meetrapport.
- Voor woningen ouder dan 25 jaar is de ouderdomsclausule van toepassing.
- Indien het woonhuis niet is bewoond door verkoper is de niet-bewoningsclausule van toepassing.
- In de koopovereenkomst zal een 10% waarborgsom of bankgarantie worden opgenomen.
- Aanvaarding: in overleg.
- Er is pas sprake van een koopovereenkomst als beide partijen de koopovereenkomst hebben ondertekend. Dit betreft het zogenaamde schriftelijkheidsvereiste.
