Oosterstraat 91, Enschede
Nabij het centrum gelegen keurige tussenwoning, aan rustige toekomstige fietsstraat, tegenover een verdiept treinspoor, met aan de achterzijde een gerealiseerde fraaie binnenstedelijke ontwikkeling. De diepe, op het noorden gelegen achtertuin heeft veel zon. In de achtertuin staat een grote stenen schuur (16 m²), prima voor een praktijk aan huis.
Indeling:
Begane grond: Entree, halletje, doorzon woonkamer met hoog plafond en bergkast, keuken, bijkeuken v.v. toilet, douche en wastafel.
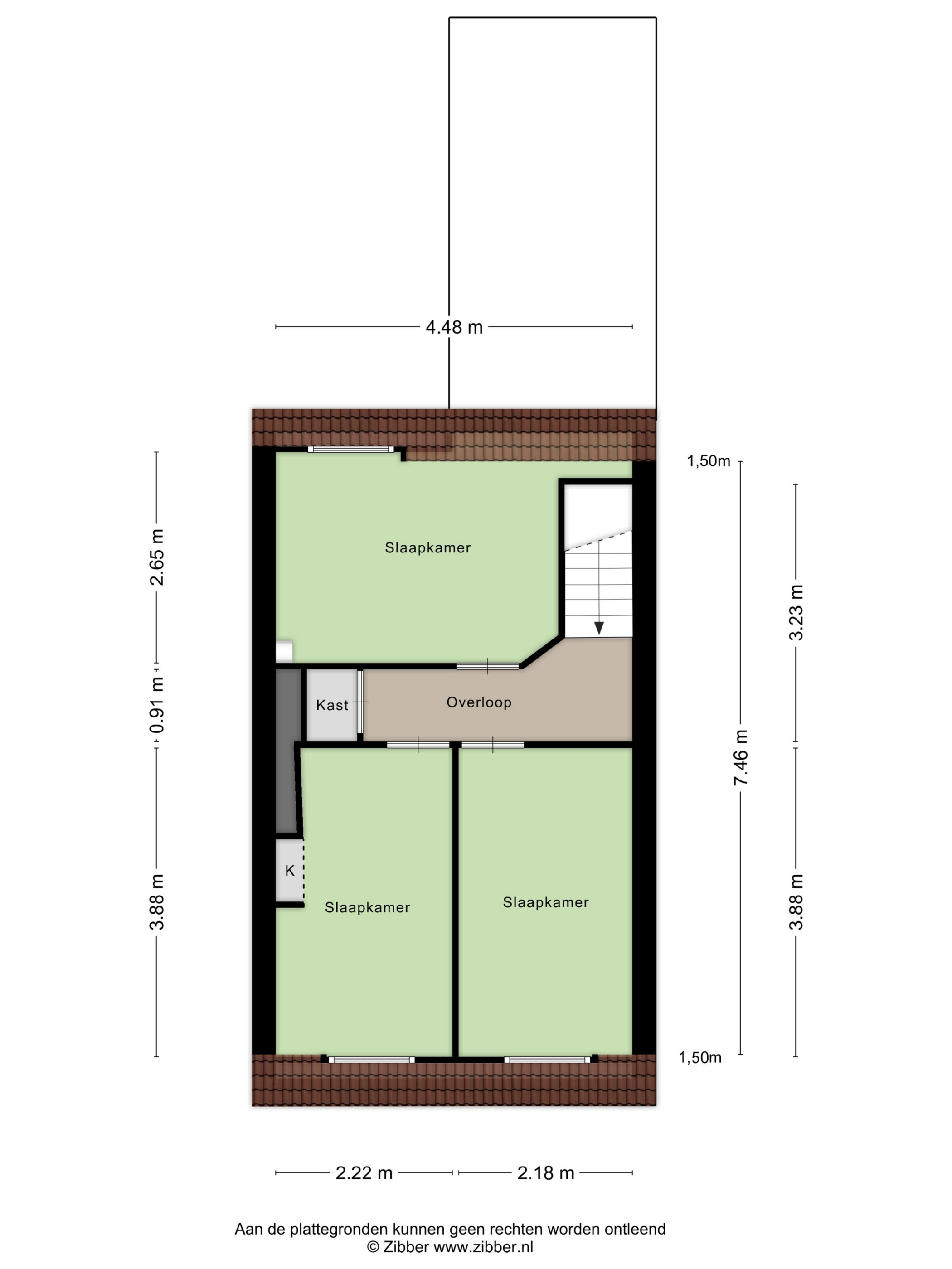
1e Verdieping: Overloop, drie slaapkamers en een stookruimte met mogelijkheid voor locatie wasmachine.
De woning heeft een energielabel C en is voornamelijk v.v. dubbele beglazing en houten en kunststof kozijnen. In 2006 is de voorgevel opnieuw met stenen opgetrokken en voorzien van isolatie. De energiekosten zijn goed beheersbaar, mede vanwege het volume van de woning. De woning is centraal gelegen, nabij het centrum en diverse openbare voorzieningen.
EXTRA Informatie:
- Oorspronkelijk bouwjaar 1895, perceel 166 m², woonoppervlakte 79 m².
- Rustige weg en toekomstige fietsstraat, nabij het centrum.
- Diverse openbare voorzieningen, w.o. winkels en detailhandel.
- Gratis en voldoende parkeerplaatsen in de straat voor de deur.
- Praktische ruime schuur, welke voor andere doeleinden gebruikt kan worden.
- Een op jouw situatie toegespitst duurzaamheidsadvies voor deze woning is beschikbaar via onze website.
EXTRA voorwaarden:
- Het woonhuis is ingemeten volgens de NEN2580 en is voorzien van een meetrapport.
- Voor woningen ouder dan 25 jaar is de ouderdomsclausule van toepassing.
- Indien het woonhuis niet is bewoond door verkoper is de niet-bewoningsclausule van toepassing.
- In de koopovereenkomst zal een 10% waarborgsom of bankgarantie worden opgenomen.
- Aanvaarding: in overleg.
- Er is pas sprake van een koopovereenkomst als beide partijen de koopovereenkomst hebben ondertekend. Dit betreft het zogenaamde schriftelijkheidsvereiste.



