J.W. Swiersstraat 79, Enschede
Ruime hoekwoning met carport, vier slaapkamers en energielabel A in Twekkelerveld!
In de gewilde wijk Twekkelerveld, op een rustige locatie met alle voorzieningen binnen handbereik, staat deze verrassend ruime hoekwoning met eigen carport, fijne tuin op het zuidwesten en maar liefst vier slaapkamers. De woning is uitstekend onderhouden, voorzien van een energielabel A, en biedt een moderne indeling met een open keuken, lichte woonkamer en praktische berging.
Indeling:
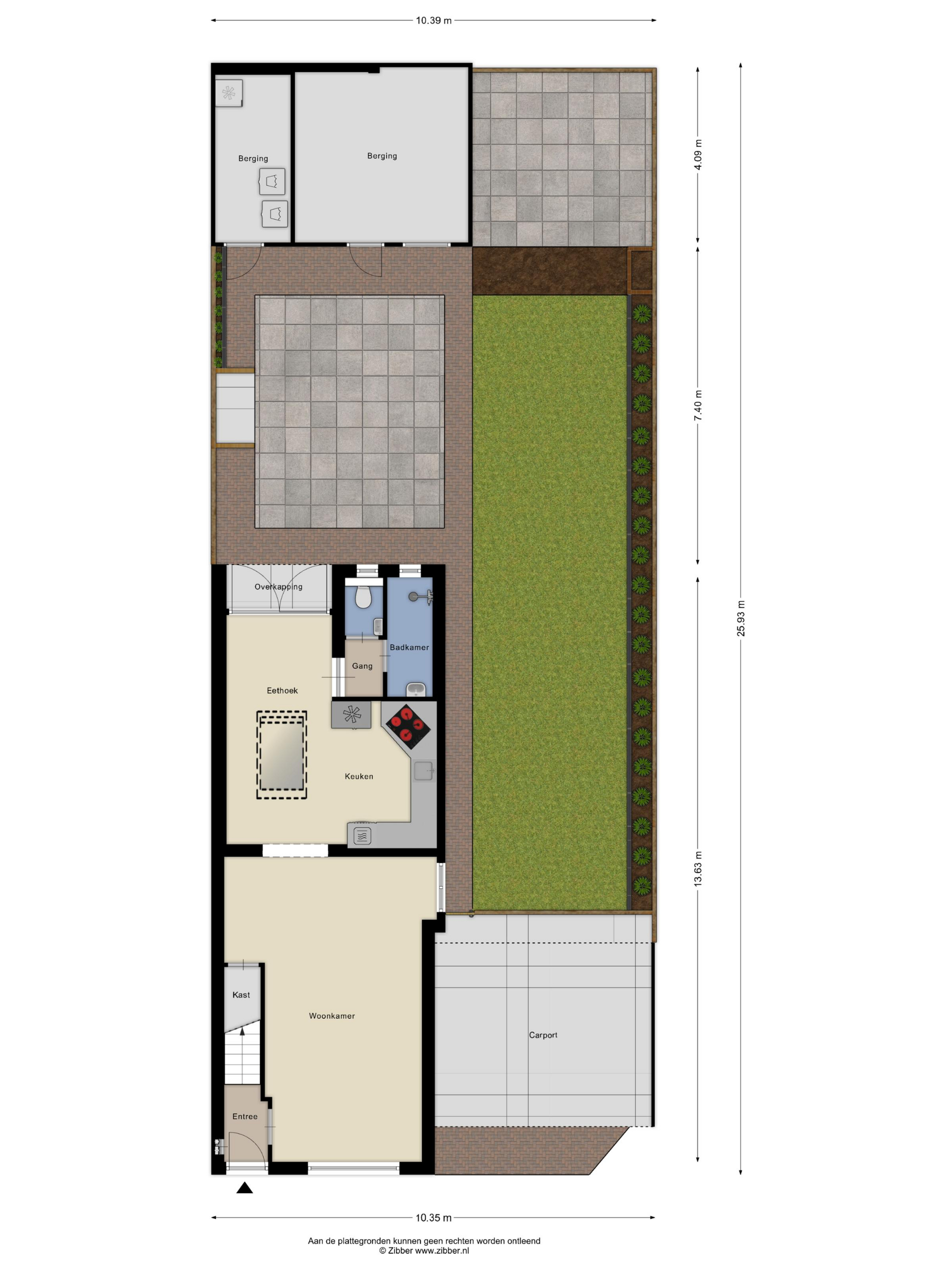
Begane grond: Via de entree met garderobe en trapopgang bereik je de ruime woonkamer met grote raampartijen waardoor er volop daglicht binnenvalt. De woonkamer staat in open verbinding met de eethoek en de keuken. Achter de keuken bevindt zich een kleine gang met toegang tot het toilet en badkamer voorzien van douche, wastafel. Via de achterdeur kom je in de zonnige tuin, waar je heerlijk kunt genieten.
Eerste verdieping: Op de eerste verdieping bevinden zich drie goed bemeten slaapkamers en een overloop met trapopgang naar de zolderverdieping. De kamers zijn stuk voor stuk licht en praktisch ingedeeld.
Tweede verdieping: De vaste trap leidt naar een royale zolderverdieping met een vierde slaapkamer. Dankzij de dakkapel en de slimme indeling is dit een volwaardige verdieping die ook uitstekend gebruikt kan worden als werkruimte of hobbykamer. Op deze verdieping bevindt zich tevens extra bergruimte.
Buitenruimte: De woning beschikt over een verzorgde achtertuin met zowel een ruim terras als een stuk kunstgras. Achterin de tuin bevindt zich een ruime dubbele berging met elektra, ideaal voor fietsen, hobby’s of extra opslag. De tuin is bereikbaar via een achterom en door de ligging geniet je de gehele dag van de zon. Aan de voorzijde bevindt zich een royale carport.
EXTRA informatie:
- Energielabel A – lage energiekosten en goed geïsoleerd.
- Voorzien van airco’s op begane grond en tweede verdieping.
- Verwarming via HR-107 cv-ketel uit 2016 (eigendom).
- Vier slaapkamers en een praktische indeling.
- Ruime tuin met berging en volop zon.
- Ruime carport op eigen terrein.
- Gelegen in de geliefde wijk Twekkelerveld, nabij scholen, winkels, openbaar vervoer en het centrum van Enschede.
EXTRA voorwaarden:
- Het woonhuis is ingemeten volgens de NEN2580 en is voorzien van een meetrapport.
- Voor woningen ouder dan 25 jaar is de ouderdomsclausule van toepassing.
- Indien het woonhuis niet is bewoond door verkoper is de niet-bewoningsclausule van toepassing.
- In de koopovereenkomst zal een 10% waarborgsom of bankgarantie worden opgenomen.
- Aanvaarding: in overleg.
- Er is pas sprake van een koopovereenkomst als beide partijen de koopovereenkomst hebben ondertekend. Dit betreft het zogenaamde schriftelijkheidsvereiste.
