Kokkelmanlanden 36, Enschede
In de wijk Stroïnkslanden gelegen, luxe tussenwoning met aangebouwde berging en carport. In deze leuke wijk heten wij u van harte welkom!
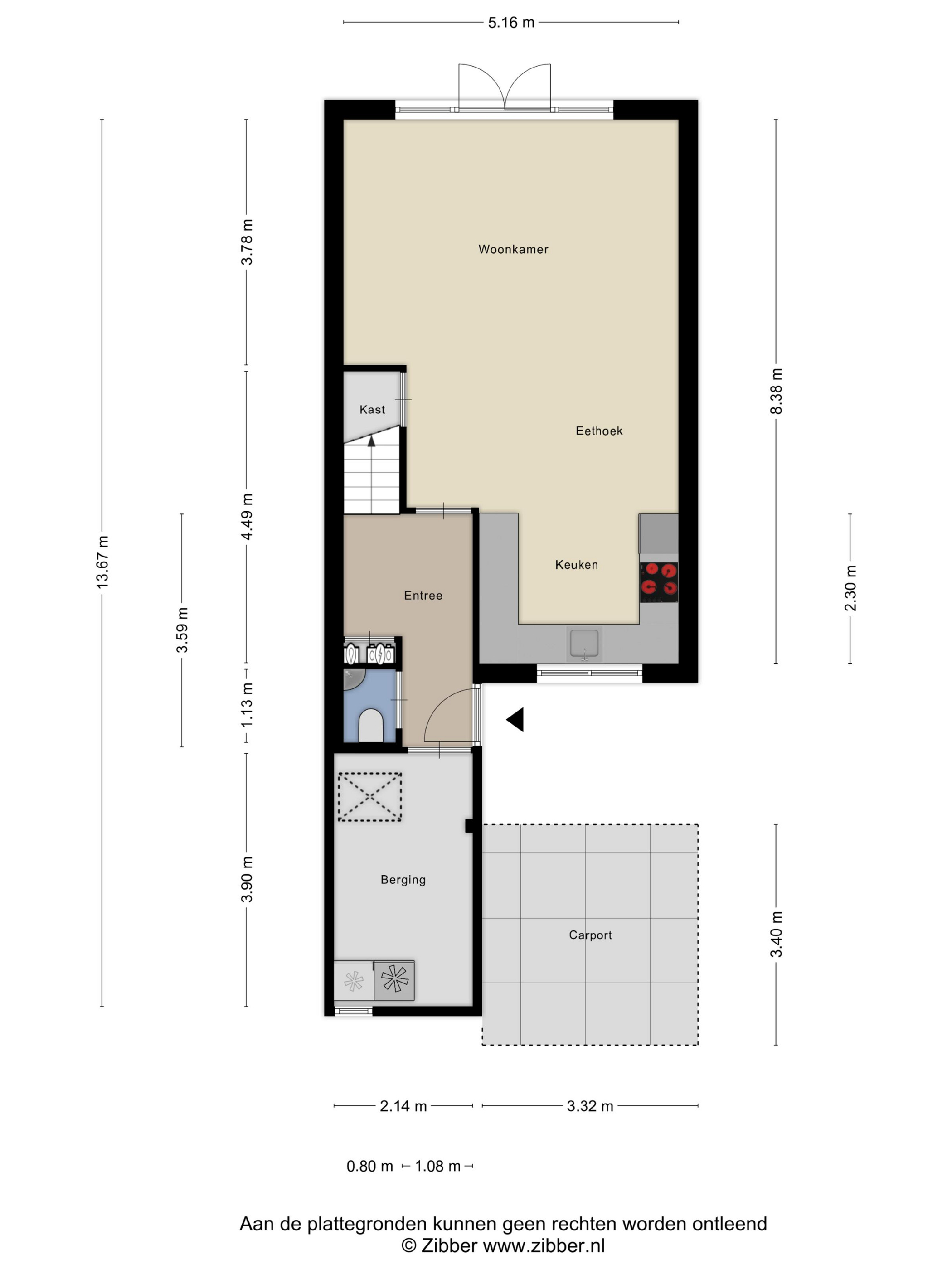
Indeling:
Begane grond: Via de eigen oprit met carport naar de zij-entree, hal met trapopgang, binnen doorgang naar de berging, toegang tot het toilet en de woonkamer. De tuingerichte woonkamer heeft dubbele tuindeuren en is luxe ingericht, net als de aansluitende keuken, welke is v.v. diverse inbouwapparatuur.
1e Verdieping: Overloop met toegang tot twee ruimte slaapkamers, hier is eenvoudig een derde slaapkamer weer te realiseren. Toegang tot de badkamer v.v. inloopdouche, wastafelmeubel en tweede toilet.
2e Verdieping: Overloop, voorzolder met berging en aansluiting voor de wasmachine en twee prima slaapkamers, mogelijk door de grote dakkapel aan de achterzijde.
Tuin: De tuin is onderhoudsarm ingericht en ligt beschut, met veel privacy. De ligging is het op noordoosten.
Energie: Het huis heeft energielabel C. Daarnaast zijn er nog extra energiebesparende maatregelen genomen zoals vloerisolatie en dubbelglas zodat de energiekosten goed beheersbaar zijn. Na deze maatregelen is er geen nieuw label aangevraagd.
In de wijk zijn er diverse voorzieningen, w.o. basisscholen, winkelcentra, openbaar vervoer en sport- en zorgvoorzieningen.
EXTRA Informatie:
- Bouwjaar 1978, perceel 125m2, woonoppervlakte 122m2.
- Luxe ingericht en in keurige staat van onderhoud.
- Grote dakkapel, waardoor er twee slaapkamers extra zijn.
- Een eigen carport voor de auto.
- Kindvriendelijke woonomgeving.
- Een op jouw situatie toegespitst duurzaamheidsadvies voor deze woning is beschikbaar via onze website.
EXTRA voorwaarden:
- Het woonhuis is ingemeten volgens de NEN2580 en is voorzien van een meetrapport.
- Voor woningen ouder dan 25 jaar is de ouderdomsclausule van toepassing.
- Indien het woonhuis niet is bewoond door verkoper is de niet-bewoningsclausule van toepassing.
- In de koopovereenkomst zal een 10% waarborgsom of bankgarantie worden opgenomen.
- Aanvaarding: in overleg.
- Er is pas sprake van een koopovereenkomst als beide partijen de koopovereenkomst hebben ondertekend. Dit betreft het zogenaamde schriftelijkheidsvereiste.
