Mastbos 116, Enschede
Aan een rustig straatje gelegen, fraaie helft van een dubbele woning, met aangebouwde berging, welke tevens een mogelijkheid biedt voor een garage of voor een praktijk aan huis.
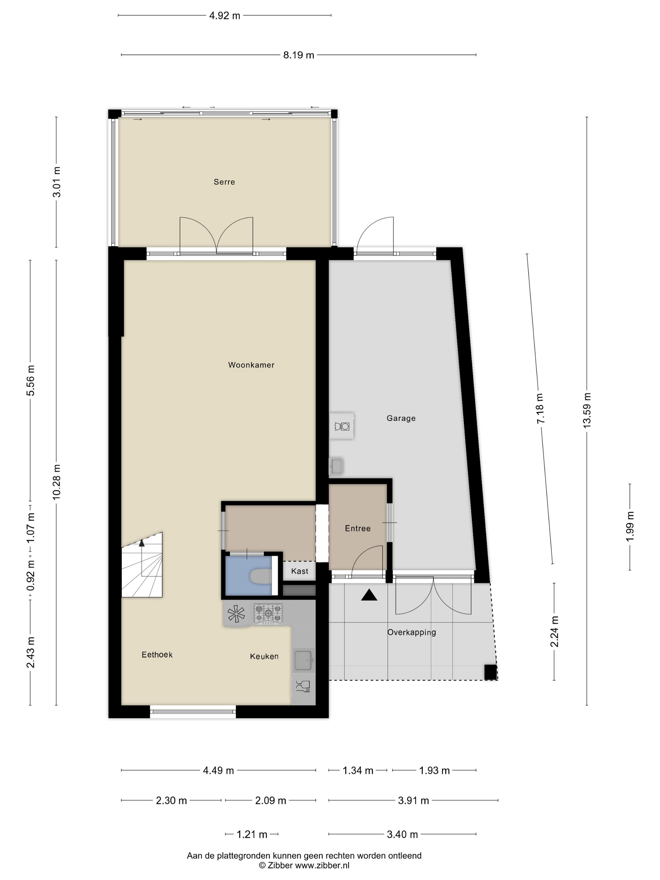
Indeling:
Begane grond: Entree, hal met toegang tot het toilet en naar de aangebouwde berging met wasruimte, woonkamer met trapopgang, half-open hoekkeuken v.v. diverse inbouwapparatuur. Vanuit de twee tuindeuren is de aangebouwde, afsluitbare overkapping te betreden.
1e Verdieping: Overloop, luxe badkamer v.v. inloopdouche, tweede toilet en een wastafelmeubel, twee slaapkamers, waar eenvoudig weer drie van te realiseren zijn, indien gewenst. De extra kamer is overigens in overleg te realiseren voordat u de woning zou betrekken.
2e Verdieping: Overloop en open ruimte, te gebruiken als derde/vierde slaapkamer. Berg- en stookruimte.
Tuin: De tuin is besloten en gesitueerd op het Noordoosten. Hier is tevens een extra vrijstaande houten berging te vinden.
Algemeen: De woning heeft energielabel B en wordt verwarmd en van warm water voorzien door de HR cv-combiketel (eigendom). Het is volledig geïsoleerd en gedeeltelijk v.v. kunststof kozijnen met HR++ beglazing. Het is centraal gelegen, nabij diverse voorzieningen.
EXTRA Informatie:
- bouwjaar 1998, perceel 208 m², woonoppervlakte 110 m²;
- leuke aangebouwde tuingerichte serre;
- energielabel B;
- rustig, kindvriendelijk en centraal gelegen;
- nabij diverse openbare voorzieningen.
Voorwaarden:
- Het woonhuis is ingemeten volgens de NEN2580 en is voorzien van een meetrapport met tekeningen;
- Voor woningen ouder dan 25 jaar is de ouderdomsclausule van toepassing;
- In de koopovereenkomst zal een 10% waarborgsom of bankgarantie worden opgenomen;
- Aanvaarding: in overleg.



