Schipholtstraat 406, Enschede
Betaalbaar wonen in een landelijke omgeving, buiten de bebouwde kom van Enschede? Dan is deze goed onderhouden, sfeervolle tussenwoning absoluut een bezichtiging waard. De woning is prachtig gelegen aan de rand van het buitengebied en biedt een vrij uitzicht over de omliggende landerijen. Een unieke combinatie van rust, ruimte en toch goede bereikbaarheid.
Wat deze woning bijzonder maakt, is de aanwezigheid van een garagebox én een extra perceel tuingrond. Het totale perceel bedraagt circa 1.042 m², waarvan circa 628 m² eigendom is en circa 414 m² gezamenlijke grond betreft (onder andere in gebruik als recht van overgang).
De eigen tuingrond biedt volop mogelijkheden en maakt de woning uniek in zijn soort. Ideaal voor tuinliefhebbers, gezinnen of iedereen die op zoek is naar extra buitenruimte.
De woning is gunstig gelegen net buiten de bebouwde kom en heeft een goede bereikbaarheid ten opzichte van diverse voorzieningen zoals basisscholen, speeltuinen, supermarkten, openbaar vervoer en uitvalswegen. Daarnaast bevinden een winkelcentrum en winkelstraat zich op korte afstand.
Kortom: een verrassend complete woning met veel buitenruimte, een landelijke ligging én alle dagelijkse voorzieningen binnen handbereik.
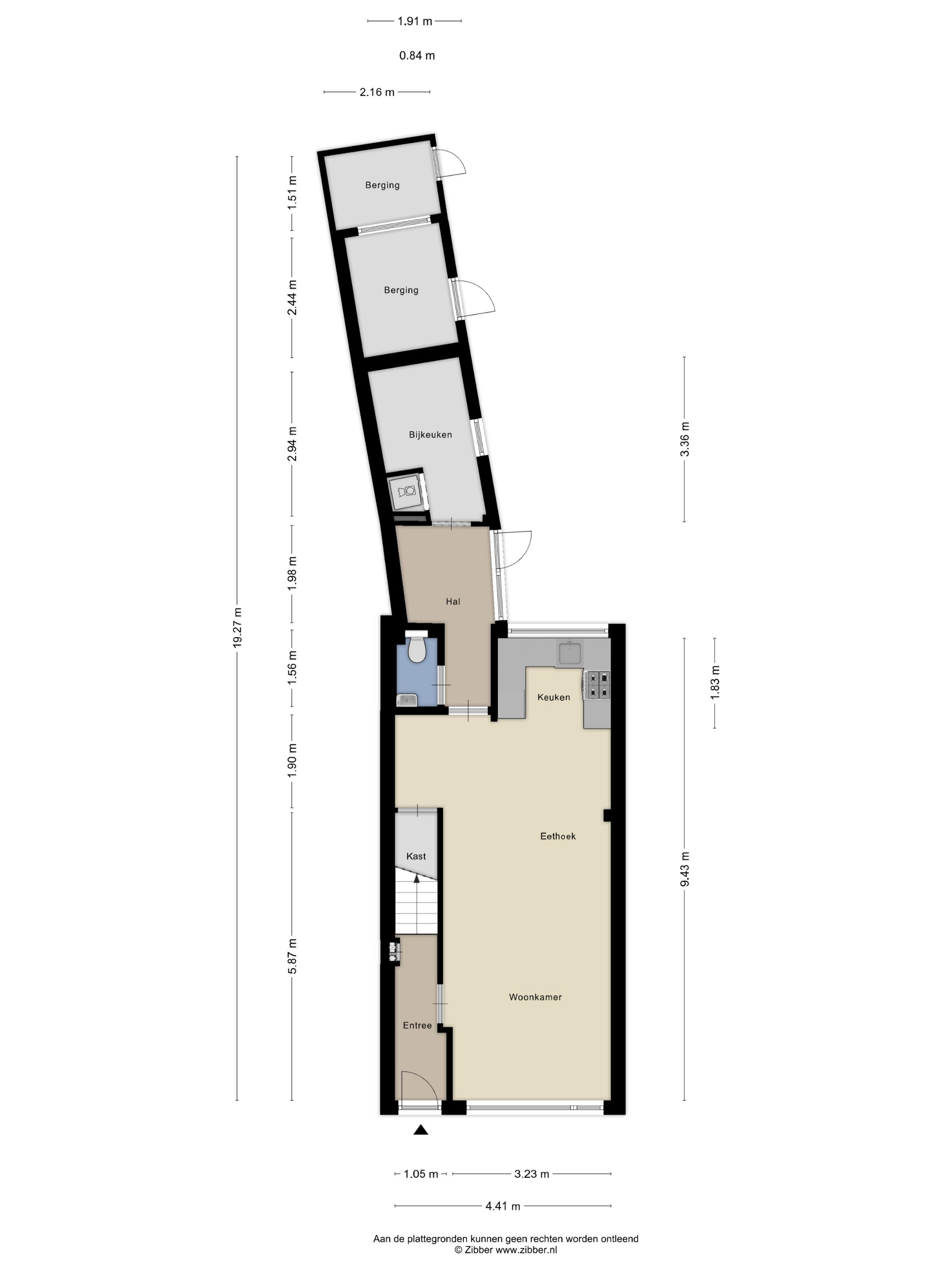
Begane grond indeling: Via de entree kom je binnen in de lange hal met meterkast, trapopgang en toegang tot de woonkamer.
De doorzonwoonkamer beschikt over grote raampartijen aan zowel de voor- als achterzijde, wat zorgt voor een prettige lichtinval gedurende de dag.
Aan de achterzijde van de woning bevindt zich de keuken, ingericht in een praktische opstelling. Hier kook je met uitzicht op de tuin. De keuken is onder andere voorzien van een vaatwasser, gasfornuis met afzuigkap, oven, koelkast en een vriezer.
Aansluitend aan de keuken bevindt zich een tussenhal. Vanuit deze hal heb je toegang tot de toiletruimte, de tuin én de bijkeuken, welke achter de hal is gelegen.
De bijkeuken biedt extra praktische bergruimte en is voorzien van de aansluitingen voor wasmachine en droger.
Via de tuin zijn daarnaast twee separate bergingen bereikbaar, ideaal voor extra opslag.
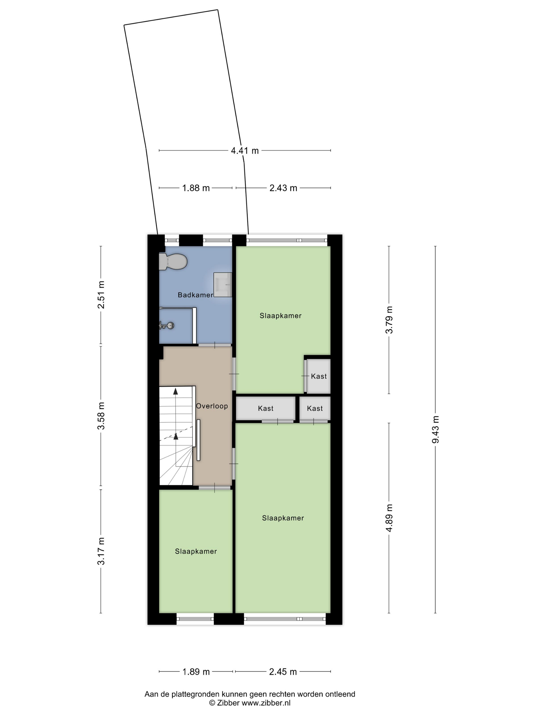
1e verdieping: Vanaf de overloop heb je toegang tot drie ruime en lichte slaapkamers, de badkamer en de vaste trap naar de tweede verdieping. De gehele verdieping is voorzien van dezelfde vloer, wat zorgt voor een strak en samenhangend geheel.
Twee van de slaapkamers beschikken over een praktische inbouwkast.
De badkamer is volledig betegeld en praktisch ingericht. Deze is voorzien van een toilet, een inloopdouche en een wastafelmeubel met opbergruimte. In de badkamer bevindt zich een raam en een separate deur naar buiten, wat zorgt voor natuurlijke ventilatie en extra daglicht.
Op de overloop bevindt zich bovendien een airconditioning, wat bijdraagt aan extra comfort op deze verdieping.
2e verdieping: Via de vaste trap bereik je de tweede verdieping. Deze verdieping is volledig aangepakt door het verhogen van de nok (muren omhoog en een nieuw dak), wat resulteert in een bijzonder ruime en sfeervolle master bedroom met een warme en verzorgde uitstraling.
Dankzij de royale hoogte en de prettige lichtinval voelt deze verdieping heerlijk ruim en comfortabel aan. Bovendien is de verdieping voorzien van een airconditioning, wat zorgt voor extra comfort, ook tijdens warme zomerdagen.
Daarnaast is er een aparte berging aanwezig waar zich de cv-installatie bevindt, praktisch en netjes uit het zicht.
Kortom: een volwaardige en comfortabele verdieping die het woonoppervlak optimaal benut en een duidelijke meerwaarde vormt voor de woning.
Tuin: Middels de achterdeur bereik je de diepe, onderhoudsvriendelijke achtertuin, die volledig is bestraat en direct grenst aan de woning. De tuin is praktisch ingericht, biedt ruimte voor een comfortabel zitgedeelte en is afgesloten middels een poort, waardoor je hier volop privacy geniet.
Achter deze poort bevinden zich de garageboxen. De garagebox is aan de achterzijde gelegen en bereikbaar via een gezamenlijke binnenplaats met weg. Achter de garage is ruimte om twee auto’s op eigen terrein te parkeren.
Achter de garageboxen ligt een extra perceel tuingrond, momenteel ingericht als grasveld. Dit perceel biedt niet alleen extra ruimte en privacy, maar is ook voorzien van elektra en stromend water, wat het geschikt maakt voor uiteenlopende gebruiksmogelijkheden, zoals een speelweide of moestuin. Bij dit perceel is bovendien ruimte om nog eens twee auto’s op eigen terrein te parkeren, wat het totaal brengt op vier privéparkeerplaatsen.
Daarnaast bevindt zich op dit perceel een sfeervolle overkapping, waar je het hele jaar door heerlijk kunt genieten van lange avonden met familie en vrienden.
Een uniek geheel met meerdere buitenruimtes, elk met een eigen functie en gebruiksmogelijkheden.
Voortuin: De woning beschikt over een verzorgde voortuin. Deze is overzichtelijk en onderhoudsvriendelijk aangelegd en biedt een prettige afstand tot de straat, wat zorgt voor extra privacy. Via het looppad is de entree van de woning goed bereikbaar.
EXTRA informatie:
- Energielabel B.
- Uitgebouwd met een dakopbouw, waardoor vier slaapkamers zijn gerealiseerd.
- Daarnaast is de woning verduurzaamd met dak en spouwmuurisolatie en uitgerust met een nieuwe Intergas Kombi cv-ketel (2025).
- Sfeervolle en goed onderhouden tussenwoning met een garagebox en extra perceel tuingrond.
- In de nabije omgeving van sportvelden, scholen, winkelstraat, Duitsland, uitvalswegen, treinstation, bushalte en buitengebied gelegen.
- Een op jouw situatie toegespitst duurzaamheidsadvies voor deze woning is beschikbaar via onze website.
- Bouwjaar: 1967, woonoppervlakte: 121 m², inhoud: ca. 445 m³, perceeloppervlakte: 1042 m².
EXTRA voorwaarden:
- Het woonhuis is ingemeten volgens de NEN2580 en is voorzien van een meetrapport.
- Voor woningen ouder dan 25 jaar is de ouderdomsclausule van toepassing.
- Indien het woonhuis niet is bewoond door verkoper is de niet-bewoningsclausule van toepassing.
- In de koopovereenkomst zal een 10% waarborgsom of bankgarantie worden opgenomen.
- Aanvaarding: in overleg.
- Er is pas sprake van een koopovereenkomst als beide partijen de koopovereenkomst hebben ondertekend. Dit betreft het zogenaamde schriftelijkheidsvereiste.



