Stentorlaan 109, Enschede
Op een rustige locatie in een kindvriendelijke omgeving in Enschede bevindt zich deze verzorgde en stijlvol afgewerkte twee-onder-een-kapwoning met verrassend ruime leefruimtes en een sfeervolle tuinkamer. De woning straalt comfort en kwaliteit uit en is tot in detail afgewerkt, waarbij de stijlvolle tv-wand en het gunstige energielabel A zorgen voor een luxe en energiezuinige woonbeleving.
De ligging aan een verkeersluw hofje, met het groene Twentse landschap op loopafstand, maakt deze woning ideaal voor gezinnen en liefhebbers van rust en ruimte. Wandelen, fietsen, sporten en recreëren kan hier volop, terwijl scholen, winkels, speelvoorzieningen en uitvalswegen snel en gemakkelijk bereikbaar zijn.
Indeling
Begane grond: Via de entree betreed je de verzorgde hal met meterkast, garderobe, trapopgang en toiletruimte. Daarnaast bevindt zich hier een op maat gemaakte inbouwkast met praktische ruimte voor schoenen.
De woonkamer is heerlijk ruim en strak afgewerkt, voorzien van een fraaie vloer en een warme, sfeervolle uitstraling. De op maat gemaakte tv-wand met geïntegreerde elektrische haard vormt een echte eyecatcher en zorgt voor extra comfort en ambiance. Dankzij de grote schuifpui aan de achterzijde geniet de woonkamer van veel natuurlijk licht en staat deze in directe verbinding met de tuin.
Via de schuifpui bereik je de fraaie tuinkamer met glazen schuifdeuren, waardoor binnen en buiten op een prettige manier in elkaar overlopen en je hier vrijwel het hele jaar door kunt genieten.
Aan de voorzijde van de woning bevindt zich de keuken, uitgevoerd in een lichte en tijdloze kleurstelling. De keuken is praktisch ingedeeld en voorzien van diverse inbouwapparatuur, waaronder een gasfornuis met afzuigkap, oven, vaatwasser, koelkast en vriezer.
1e verdieping: Vanaf de overloop zijn drie slaapkamers, de moderne badkamer en de vaste trap naar de zolderverdieping bereikbaar. Tevens is de dakkapel een extra pluspunt, aangezien deze niet standaard is uitgevoerd en zorgt voor extra ruimte en lichtinval. De grootste slaapkamer is voorzien van airconditioning, wat bijdraagt aan extra comfort.
De moderne badkamer is in 2025 vernieuwd, volledig betegeld en strak afgewerkt. Deze is voorzien van een douche, toilet, een dubbele wastafel met meubel en een raam dat zorgt voor natuurlijke ventilatie en prettig daglicht.
De verdieping beschikt over een praktische en logische indeling, met comfortabele slaapkamers en voldoende ruimte voor dagelijks gebruik.
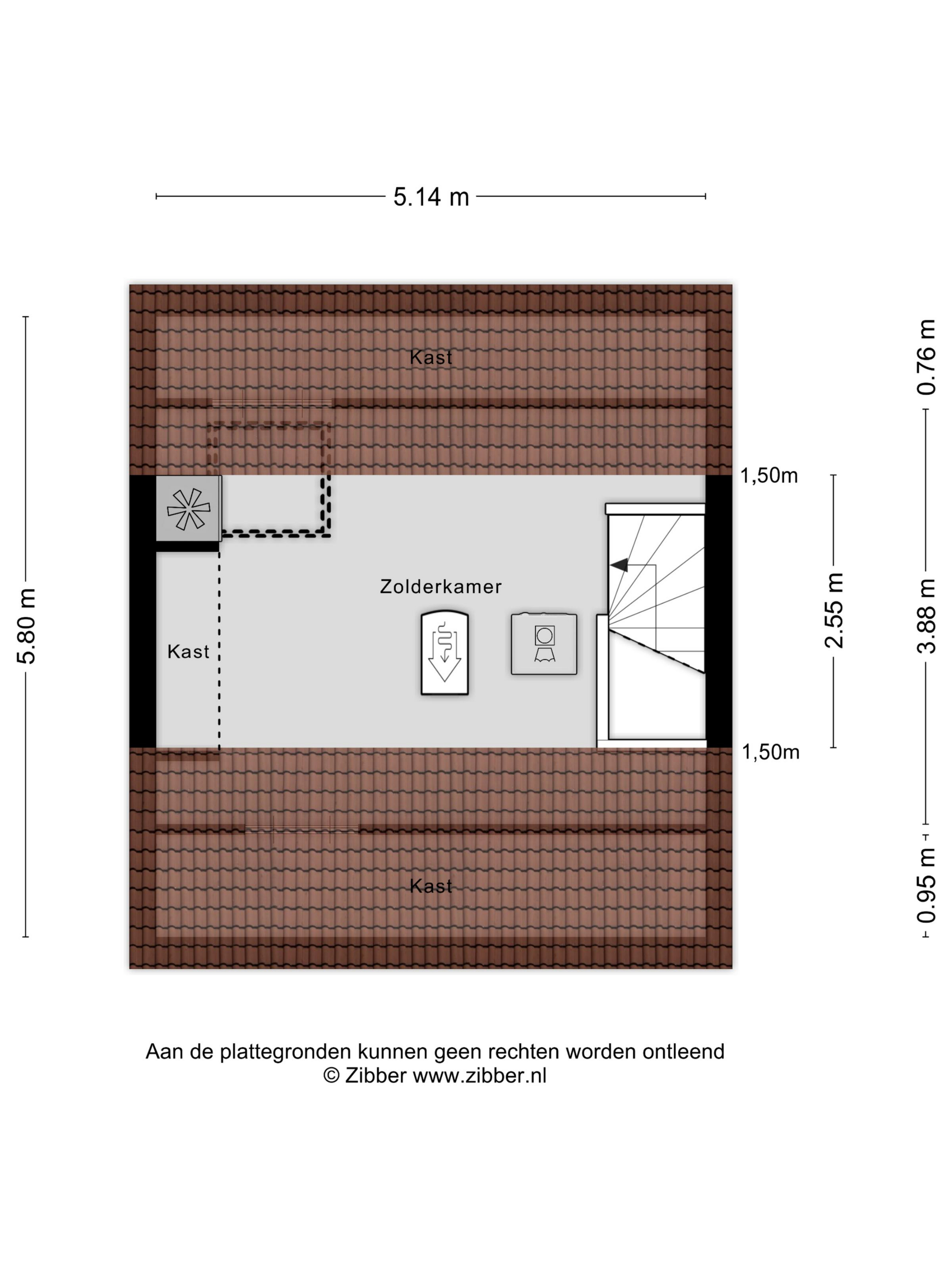
2e verdieping: Via een vaste trap bereik je de zolderverdieping. Deze ruimte is voorzien van een dakraam, wat zorgt voor prettig daglicht. Daarnaast bevinden zich hier de cv-installatie en de aansluitingen voor de wasmachine en droger. Kortom, een functionele ruimte met voldoende bergruimte en een op maat gemaakte kast.
Tuin: De zonnige achtertuin is gunstig gelegen op het zuidwesten en biedt volop ruimte om van het buitenleven te genieten. De tuin is groter dan gebruikelijk bij dit woningtype, netjes aangelegd en voorzien van een ruime, moderne overkapping (tuinkamer) met glazen schuifwanden. Hierdoor kun je hier het hele jaar door comfortabel zitten, ongeacht het weer.
EXTRA informatie:
- Energielabel A.
- Instapklare woning met een verzorgde afwerking.
- De woning beschikt over drie slaapkamers.
- Moderne, recent vernieuwde badkamer.
- De gehele woning is voorzien van isolerende beglazing.
- Grotendeels voorzien van rolluiken.
- Het dak van de overkapping en de schuur is vernieuwd in 2022.
- Heerlijke tuinkamer direct aan de woning, geschikt voor gebruik in alle seizoenen.
- Centrale verwarmingsinstallatie welke een ‘warmte terugwin functie’ heeft, Intergas HR uit 2004, eigendom.
- De woning is voorzien van diverse extra’s, waaronder een aircosysteem, zonnepanelen, een laadpaal voor een elektrische auto, heteluchtverwarming en een stijlvolle tv-wand.
- Grotere tuin dan gebruikelijk bij dit woningtype en voorzien van een dakkapel (niet standaard), wat zorgt voor extra ruimte en comfort.
- Voorzien van 15 zonnepanelen.
- Het buitenschilderwerk is uitgevoerd in 2023.
- Het binnenschilderwerk is uitgevoerd in 2022–2023.
- In deze groene woonwijk komt alleen bestemmingsverkeer en is erg kindvriendelijk.
- Een op jouw situatie toegespitst duurzaamheidsadvies voor deze woning is beschikbaar via onze website.
- Bouwjaar: 2004, woonoppervlakte: 94 m², inhoud: ca. 333 m³, perceeloppervlakte: 139 m².
EXTRA voorwaarden:
- Het woonhuis is ingemeten volgens de NEN2580 en is voorzien van een meetrapport.
- Voor woningen ouder dan 25 jaar is de ouderdomsclausule van toepassing.
- Indien het woonhuis niet is bewoond door verkoper is de niet-bewoningsclausule van toepassing.
- In de koopovereenkomst zal een 10% waarborgsom of bankgarantie worden opgenomen.
- Aanvaarding: in overleg.
- Er is pas sprake van een koopovereenkomst als beide partijen de koopovereenkomst hebben ondertekend. Dit betreft het zogenaamde schriftelijkheidsvereiste.



