Voortsweg 338, Enschede
Prachtige authentieke helft van een dubbele woning, rustig aan een bosrand met grote achtertuin en grote tuingerichte, achtergelegen uitbouw t.b.v. woonruimte of inwoning van een ouder of kind. Nabij het Roombeek, ’t Vaneker en het buitengebied gelegen, op fietsafstand van het centrum en diverse openbare voorzieningen.
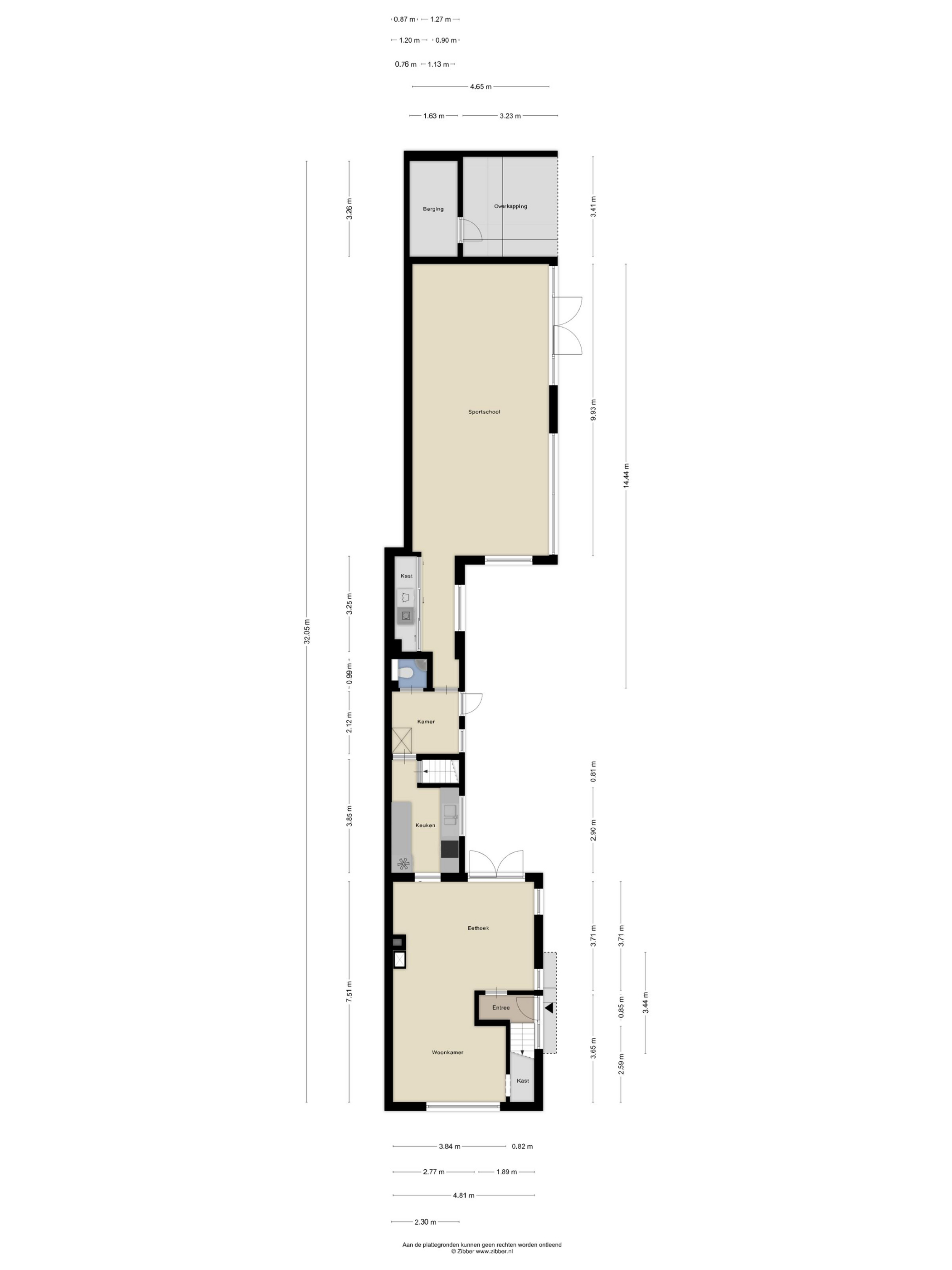
Indeling:
Begane grond: Entree, hal met trapopgang, L-vormige woonkamer, dichte keuken, kelderruimte, achteringang, toilet, bijkeuken en tevens toegang tot grote aanbouw van ruim 65 m², met zicht over de tuin aan de bosrand.
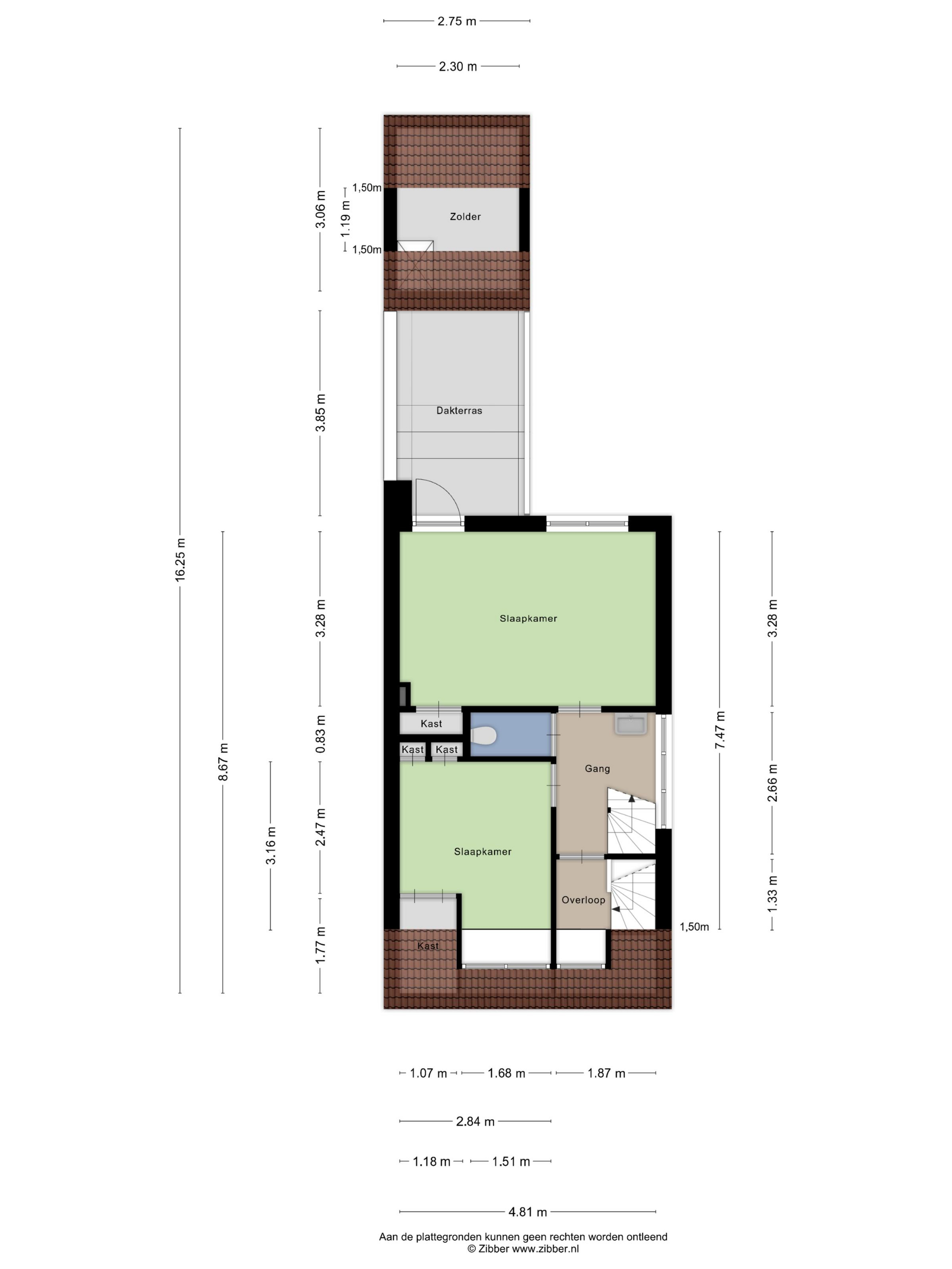
1e Verdieping: Overloop, toilet, wastafel en twee slaapkamers.
2e Verdieping: Voorzolder, in gebruik als slaapkamer met aansluitend een badkamer, v.v. een ligbad, toilet, wastafelmeubel en een aparte douche.
Tuin: Naast de brede oprit is er ruimte voor fietsen en is er een kleine voortuin die zorgt voor de privacy aan de voorzijde, aan de zijkant biedt de ruime tuin rust en mooi zicht op de bosrand met daarachter een fietspad, welke verbind met Lonneker. Aan de achterbouw zit nog een fraaie overkapping met een bergschuur.
Energie: Het huis heeft een energielabel C. Warm water en verwarming is door middel van de eigen Cv-combiketel (2010).
Omgeving: De woning is gelegen nabij het buitengebied, de woonwijken ’t Vaneker en Roombeek, op fietsafstand van het centrum en het dorp Lonneker en diverse openbare voorzieningen.
EXTRA Informatie:
- Bouwjaar 1936, perceel 456 m² en woonoppervlakte 163 m².
- Grote achterbouw voor diverse doeleinden te gebruiken, bijvoorbeeld een kantoor aan huis, inwoning van een ouder of kind en als praktijkruimte.
- Energielabel C, verbeteringen mogelijk.
- zeer centraal en praktisch gelegen voor meerdere woonwensen.
- grote zijtuin aan bosrand gelegen.
EXTRA voorwaarden:
- Het woonhuis is ingemeten volgens de NEN2580 en is voorzien van een meetrapport.
- Voor woningen ouder dan 25 jaar is de ouderdomsclausule van toepassing.
- Indien het woonhuis niet is bewoond door verkoper is de niet-bewoningsclausule van toepassing.
- In de koopovereenkomst zal een 10% waarborgsom of bankgarantie worden opgenomen.
- Aanvaarding: in overleg.
- Er is pas sprake van een koopovereenkomst als beide partijen de koopovereenkomst hebben ondertekend. Dit betreft het zogenaamde schriftelijkheidsvereiste.



