Wethouder Elhorststraat 10, Enschede
Welkom aan de Wethouder Elhorststraat 10 in Enschede!
Deze instapklare woning combineert de charme van de jaren ’30 met modern wooncomfort. Met een lichte woonkamer, een nette keuken en badkamer, twee ruime slaapkamers op de eerste verdieping én een royale derde slaapkamer op zolder met dakkapel, biedt deze woning alle ruimte om fijn te wonen. Daarnaast is de woning voorzien van airconditioning voor extra comfort en kun je buiten genieten van een diepe achtertuin met berging en overkapping.
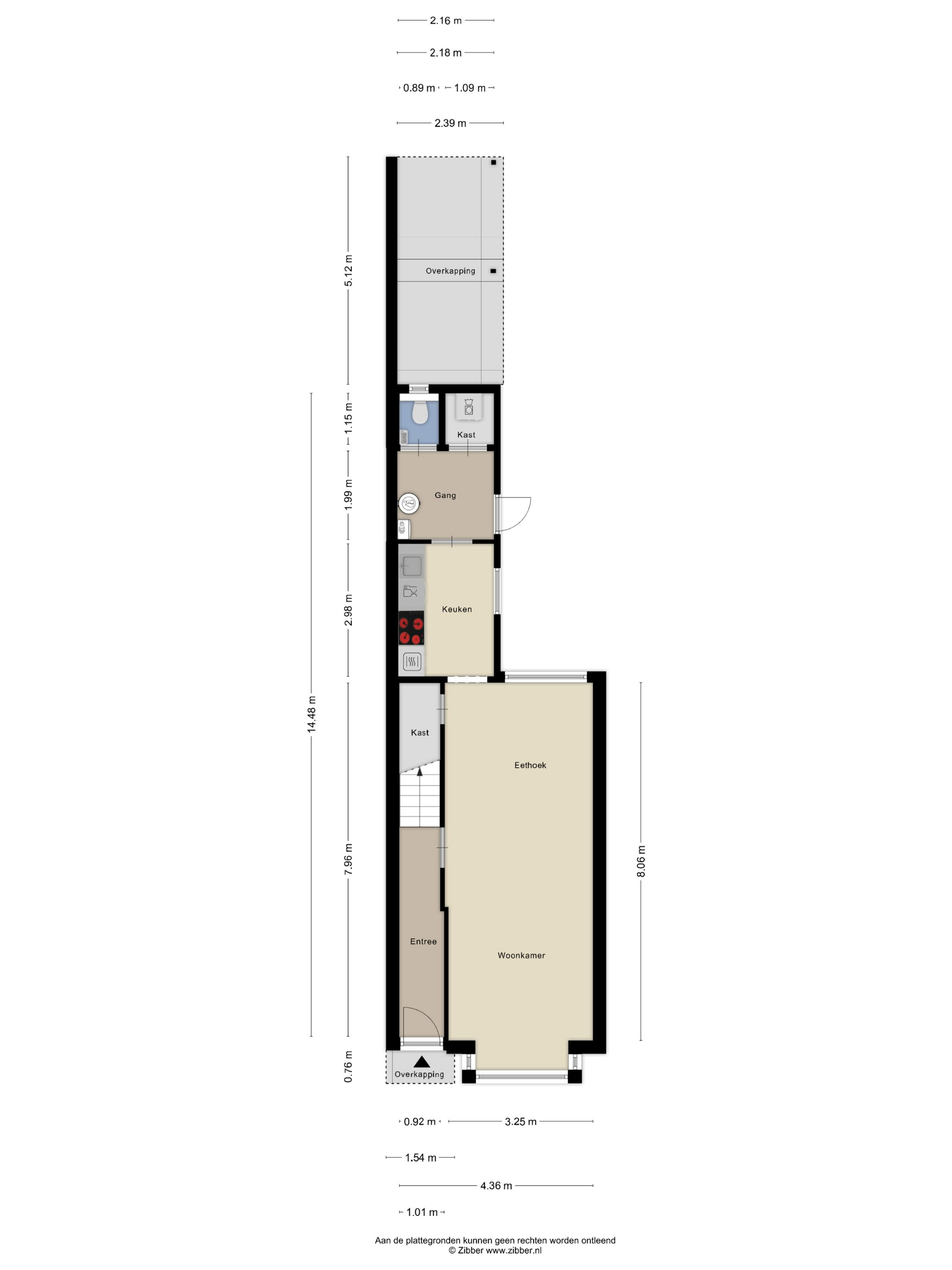
Begane grond:
Indeling: Je stapt binnen in de hal met een authentieke vloer die direct een warme sfeer uitstraalt. Hier bevinden zich een radiator en de trapopgang naar de eerste verdieping.
Vanuit de hal kom je in de lichte woonkamer. Dankzij de grote ramen aan zowel de voor- als achterzijde geniet je hier de hele dag door van veel natuurlijk licht. De woonkamer biedt volop ruimte voor een gezellige zit- en eethoek, is strak afgewerkt met een moderne vloer en frisse wanden en beschikt bovendien over airconditioning.
Aan de achterzijde van de woning ligt de keuken, voorzien van een praktische tegelvloer en uitgevoerd in een functionele opstelling. De keuken is uitgerust met diverse inbouwapparatuur, waaronder een combi-oven, gasfornuis met afzuigkap en een vaatwasser. Aansluitend bevindt zich de bijkeuken met de cv-ketel, een modern hangcloset met fontein en de aansluitingen voor wasmachine en droger. Vanuit de bijkeuken is er directe toegang tot de tuin.
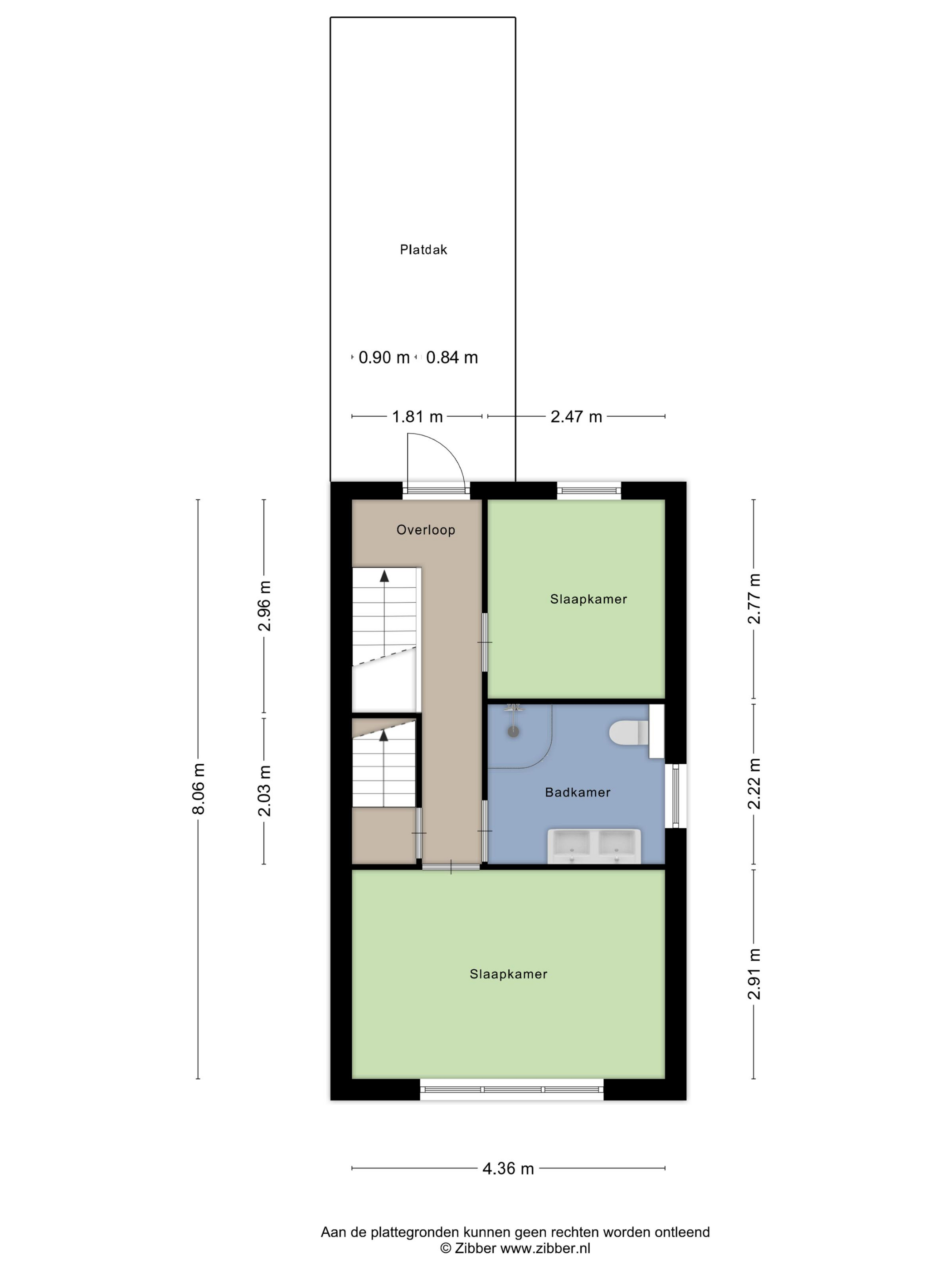
1e verdieping: Vanaf de overloop heb je toegang tot twee ruime slaapkamers en de moderne badkamer. Beide kamers zijn licht en praktisch ingedeeld, waarbij de grootste is voorzien van airconditioning voor extra comfort.
De badkamer is geheel betegeld in een eigentijdse kleurstelling en voorzien van een inloopdouche met regendouche en handdouche, een dubbele wastafel met meubel, een tweede toilet en een designradiator.
De tweede slaapkamer wordt momenteel gebruikt als inloopkast, maar kan uiteraard ook uitstekend dienen als slaap- of werkkamer.
2e verdieping: Via een vaste trap bereik je de ruime zolderverdieping. Hier vind je een royale slaapkamer met een prachtige open kapconstructie en veel lichtinval dankzij de dakkapel.
De hoge nok en de zichtbare balken geven deze verdieping extra karakter en een ruimtelijk gevoel.
De zolder biedt volop mogelijkheden; zo kan de ruimte uitstekend gebruikt worden als master bedroom, een combinatie van slaap- en werkruimte of als hobbykamer. De nette afwerking met een doorlopende laminaatvloer maakt het geheel instapklaar.
Tuin: De woning beschikt over een diepe en onderhoudsvriendelijke achtertuin met een fijne indeling. Direct aan de woning vind je een overkapping, ideaal om beschut te genieten van het buitenleven. Verderop in de tuin staat een ruime houten berging, die perfect is voor het stallen van fietsen en het opbergen van tuingereedschap.
De tuin is grotendeels bestraat, afgewisseld met een groene border, en biedt volop mogelijkheden om naar eigen smaak verder in te richten. Dankzij de diepte van het perceel is er altijd een fijne plek te vinden om te ontspannen in de zon of juist in de schaduw. Extra praktisch: de tuin is bereikbaar via een poort aan de zijkant van de woning.
EXTRA informatie:
- Energielabel E.
- De woning is voorzien van 3 ruime slaapkamers.
- Voorzien van isolerende beglazing.
- Airconditioning op de begane grond en in de grootste slaapkamer (1e verdieping).
- Moderne keuken en badkamer.
- Diepe onderhoudsvriendelijke tuin.
- In de wijk zijn diverse openbare voorzieningen, zoals openbaar vervoer, snelwegen, sport en zorgvoorzieningen, winkelcentra, basisscholen en voortgezet onderwijs.
- Een op jouw situatie toegespitst duurzaamheidsadvies voor deze woning is beschikbaar via onze website.
- Bouwjaar: 1930, woonoppervlakte: 105 m², inhoud: ca. 373 m³, perceeloppervlakte: 190 m².
EXTRA voorwaarden:
- Het woonhuis is ingemeten volgens de NEN2580 en is voorzien van een meetrapport.
- Voor woningen ouder dan 25 jaar is de ouderdomsclausule van toepassing.
- Indien het woonhuis niet is bewoond door verkoper is de niet-bewoningsclausule van toepassing.
- In de koopovereenkomst zal een 10% waarborgsom of bankgarantie worden opgenomen.
- Aanvaarding: in overleg.
- Er is pas sprake van een koopovereenkomst als beide partijen de koopovereenkomst hebben ondertekend. Dit betreft het zogenaamde schriftelijkheidsvereiste.
